Пройти тестПоможем подобрать блок-контейнер под Вашу задачу!

График работы: с 09:00 до 19:00 без перерывов. Адрес головного офиса: г. Москва, ул. Дмитровское шоссе, д. 60 Адрес выставочной площадки: Московская область, Сергиево-Посадский район, д. Лешково, д. 65А

Наши бытовки - лучшее решение
для временного размещения!
Ваш город Ростов
Свернуть

Цены на бытовки и другую продукцию

В прайс-листе указаны цены на продукцию компании СПК Ванда. Продукция представлена в базовой комплектации. По запросу клиента продукт может быть доукомплектован мебелью, бельем, и другим необходимым оснащением. Обращайтесь к нашим менеджерам по телефону 8 495 481-33-83, и они окажут содействие в подборе комплектации интересующего Вас продукта.
excel
Полный прайс-лист представлен в документе, нажмите чтобы скачать.

Металлические строительные бытовки

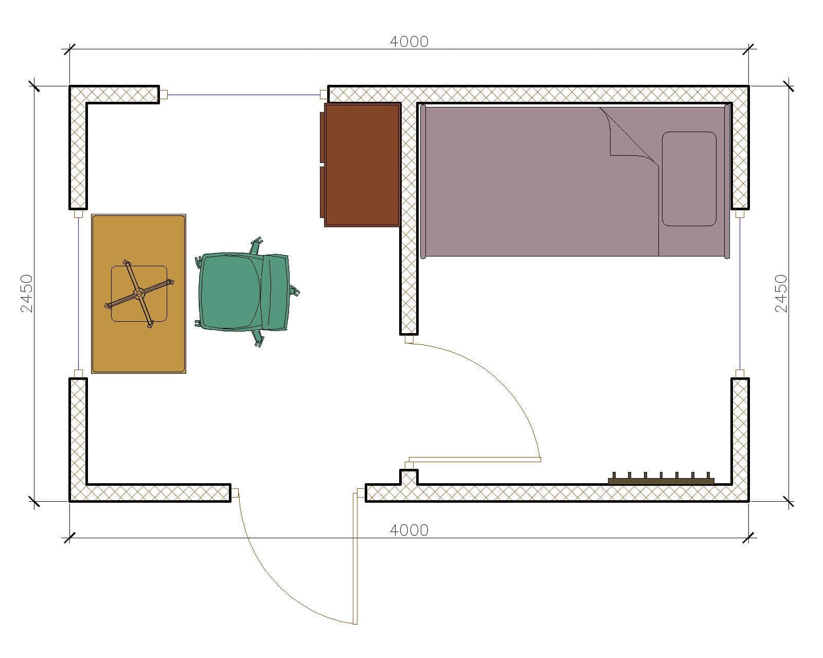
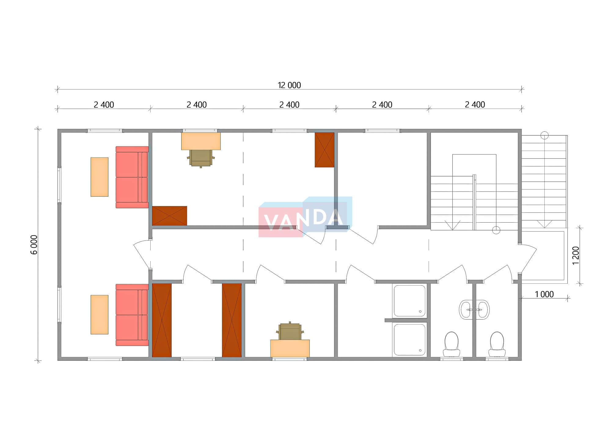
Вид Наименование / тип Габаритные размеры (м.) Общая площадь (м²) Схема планировки Внутренняя отделка Наружная отделка Покупка / руб. Аренда (руб. / мес.)
Бытовка строительная металлическая 1,5х1,5 1.5x1.5 2.25 Оргалит-ДВП оцинкованный профлист 80 500 р. Уточняйте у менеджера
Бытовка строительная металлическая 1,5х1,5 1.5x1.5 2.25 Вагонка ПВХ оцинкованный профлист 83 000 р. Уточняйте у менеджера
Бытовка металлическая строительная 1,5х1,5 1.5x1.5 2.25 Вагонка деревянная оцинкованный профлист 87 000 р. Уточняйте у менеджера
Бытовка строительная металлическая 2,5x2,45 2.5x2.4 6 Оргалит-ДВП оцинкованный профлист 84 500 р. Уточняйте у менеджера
Бытовка строительная из металла 2,5x2,45 2.5x2.4 6 Вагонка ПВХ оцинкованный профлист 86 000 р. Уточняйте у менеджера
Бытовка строительная из металла 2,5x2,45 2.5x2.4 6 Вагонка деревянная оцинкованный профлист 90 000 р. Уточняйте у менеджера
Бытовка металлическая для строителей 3x2,45 - Оргалит ДВП 3x2.4 7.2 Оргалит-ДВП оцинкованный профлист 87 000 р. Уточняйте у менеджера
Бытовка металлическая для строителей 3x2,45 - Вагонка ПВХ 3x2.4 7.2 Вагонка ПВХ оцинкованный профлист 91 500 р. Уточняйте у менеджера
Бытовка металлическая для строителей 3x2,45 - Вагонка деревянная 3x2.4 7.2 Вагонка деревянная оцинкованный профлист 92 000 р. Уточняйте у менеджера
Бытовка металлическая на стройку 4x 2,45 с окном 4x2.4 9.6 Оргалит-ДВП оцинкованный профлист 96 000 р. Уточняйте у менеджера
Бытовка металлическая на стройку 4x 2,45 с окном 4x2.4 9.6 Вагонка ПВХ оцинкованный профлист 96 500 р. Уточняйте у менеджера
Бытовка металлическая на стройплощадку 4x 2,45 с окном 4x2.4 9.6 Вагонка деревянная оцинкованный профлист 102 000 р. Уточняйте у менеджера
Бытовка металлическая с тамбуром 6х2,45 5.85x2.4 14.04 Оргалит-ДВП оцинкованный профлист 108 000 р. Уточняйте у менеджера
Бытовка металлическая с тамбуром 6х2,45 5.85x2.4 14.04 Вагонка ПВХ оцинкованный профлист 112 000 р. Уточняйте у менеджера
Бытовка металлическая с тамбуром 6х2,45 5.85x2.4 14.04 Вагонка деревянная оцинкованный профлист 116 000 р. Уточняйте у менеджера
Бытовка строительная 6х2,45 на строительную площадку 5.85x2.4 14.04 Оргалит-ДВП оцинкованный профлист 109 500 р. Уточняйте у менеджера
Бытовка строительная из контейнера 6х2,45 5.85x2.4 14.04 Вагонка ПВХ оцинкованный профлист 113 500 р. Уточняйте у менеджера
Бытовка строительная из контейнера 6х2,45 5.85x2.4 14.04 Вагонка деревянная оцинкованный профлист 115 500 р. Уточняйте у менеджера
Бытовка металлическая двухкомнатная 6х2,45 5.85x2.4 14.04 Оргалит-ДВП оцинкованный профлист 110 000 р. Уточняйте у менеджера
Бытовка металлическая двухкомнатная 6х2,45 5.85x2.4 14.04 Вагонка ПВХ оцинкованный профлист 114 000 р. Уточняйте у менеджера
Бытовка металлическая двухкомнатная 6х2,45 5.85x2.4 14.04 Вагонка деревянная оцинкованный профлист 118 000 р. Уточняйте у менеджера
Бытовка металлическая распашонка 6х2,45 5.85x2.4 14.04 Оргалит-ДВП оцинкованный профлист 110 500 р. Уточняйте у менеджера
Бытовка металлическая распашонка 6х2,45 5.85x2.4 14.04 Вагонка ПВХ оцинкованный профлист 114 500 р. Уточняйте у менеджера
Бытовка металлическая распашонка 6х2,45 5.85x2.4 14.04 Вагонка деревянная оцинкованный профлист 118 500 р. Уточняйте у менеджера
Бытовка металлическая без тамбура 6х2,45 5.85x2.4 14.04 Оргалит-ДВП оцинкованный профлист 106 000 р. Уточняйте у менеджера
Бытовка металлическая без тамбура 6х2,45 5.85x2.4 14.04 Вагонка ПВХ оцинкованный профлист 108 500 р. Уточняйте у менеджера
Бытовка металлическая без тамбура 6х2,45 5.85x2.4 14.04 Вагонка деревянная оцинкованный профлист 114 000 р. Уточняйте у менеджера
Бытовка металлическая двухкомнатная 6х2,45 5.85x2.4 14.04 Оргалит-ДВП оцинкованный профлист 110 000 р. Уточняйте у менеджера
Бытовка металлическая двухкомнатная 6х2,45 5.85x2.4 14.04 Вагонка ПВХ оцинкованный профлист 114 000 р. Уточняйте у менеджера
Бытовка металлическая двухкомнатная 6х2,45 5.85x2.4 14.04 Вагонка деревянная оцинкованный профлист 118 000 р. Уточняйте у менеджера
Бытовка металлическая распашонка 6х2,45 5.85x2.4 14.04 Оргалит-ДВП оцинкованный профлист 110 500 р. Уточняйте у менеджера
Бытовка металлическая распашонка 6х2,45 5.85x2.4 14.04 Вагонка ПВХ оцинкованный профлист 114 500 р. Уточняйте у менеджера
Бытовка металлическая распашонка 6х2,45 5.85x2.4 14.04 Вагонка деревянная оцинкованный профлист 118 500 р. Уточняйте у менеджера

Бытовки в готовом виде

Вид Наименование / тип Габаритные размеры (м.) Общая площадь (м²) Схема планировки Внутренняя отделка Наружная отделка Покупка / руб. Аренда (руб. / мес.)
Строительная бытовка №2 (вариант 1) 4x2.2 8.8 Оргалит-ДВП Имитация бруса 98 500 р. Уточняйте у менеджера
Строительная бытовка №2 (вариант 2) 4x2.2 8.8 Оргалит-ДВП Профлист 103 500 р. Уточняйте у менеджера
Строительная бытовка №5 (вариант 1) 5.8x2.2 12.76 Оргалит-ДВП Имитация бруса 115 000 р. Уточняйте у менеджера
Строительная бытовка №5 (вариант 2) 5.8x2.2 12.76 Оргалит-ДВП Профлист 120 000 р. Уточняйте у менеджера
Строительная бытовка №3 (вариант 1) 5.8x2.2 12.76 Оргалит-ДВП Имитация бруса 115 000 р. Уточняйте у менеджера
Строительная бытовка №3 (вариант 2) 5.8x2.2 12.76 Оргалит-ДВП Профлист 120 000 р. Уточняйте у менеджера
Строительная бытовка №4 (вариант 1) 5.8x2.2 12.76 Оргалит-ДВП Имитация бруса 116 000 р. Уточняйте у менеджера
Строительная бытовка №4 (вариант 2) 5.8x2.2 12.76 Оргалит-ДВП Профлист 121 000 р. Уточняйте у менеджера
Строительная бытовка №2 (вариант 3) 4x2.2 8.8 Вагонка деревянная Имитация бруса 103 000 р. Уточняйте у менеджера
Строительная бытовка №5 (вариант 3) 5.8x2.2 12.76 Вагонка деревянная Имитация бруса 122 500 р. Уточняйте у менеджера
Строительная бытовка №3 (вариант 3) 5.8x2.2 12.76 Вагонка деревянная Имитация бруса 124 000 р. Уточняйте у менеджера
Строительная бытовка №4 (вариант 3) 5.8x2.2 12.76 Вагонка деревянная Имитация бруса 125 500 р. Уточняйте у менеджера
Строительная бытовка №1 (вариант 1) 3x2.2 6.6 Оргалит-ДВП Имитация бруса 93 500 р. Уточняйте у менеджера
Строительная бытовка №1 (вариант 2) 3x2.2 6.6 Оргалит-ДВП Профлист 98 500 р. Уточняйте у менеджера
Строительная бытовка №1 (вариант 3) 3x2.2 6.6 Вагонка деревянная Имитация бруса 98 000 р. Уточняйте у менеджера
Строительная бытовка №6 (вариант 1) 5.8x2.2 12.76 Оргалит-ДВП Имитация бруса 115 500 р. Уточняйте у менеджера
Строительная бытовка №6 (вариант 2) 5.8x2.2 12.76 Оргалит-ДВП Профлист 120 500 р. Уточняйте у менеджера
Строительная бытовка №6 (вариант 3) 5.8x2.2 12.76 Вагонка деревянная Имитация бруса 124 000 р. Уточняйте у менеджера
Строительная бытовка №7 (вариант 1) 5.8x2.2 12.76 Оргалит-ДВП Имитация бруса 113 000 р. Уточняйте у менеджера
Строительная бытовка №7 (вариант 2) 5.8x2.2 12.76 Оргалит-ДВП Профлист 118 000 р. Уточняйте у менеджера
Строительная бытовка №7 (вариант 3) 5.8x2.2 12.76 Вагонка деревянная Имитация бруса 122 000 р. Уточняйте у менеджера
Строительная бытовка №8 (вариант 1) 5.8x2.2 12.76 Оргалит-ДВП Имитация бруса 114 000 р. Уточняйте у менеджера
Строительная бытовка №8 (вариант 2) 5.8x2.2 12.76 Оргалит-ДВП Профлист 119 000 р. Уточняйте у менеджера
Строительная бытовка №8 (вариант 3) 5.8x2.2 12.76 Вагонка деревянная Имитация бруса 123 500 р. Уточняйте у менеджера
Строительная бытовка №9 (вариант 1) 5.8x2.2 12.76 Оргалит-ДВП Имитация бруса 113 000 р. Уточняйте у менеджера
Строительная бытовка №9 (вариант 2) 5.8x2.2 12.76 Оргалит-ДВП Профлист 118 000 р. Уточняйте у менеджера
Строительная бытовка №9 (вариант 3) 5.8x2.2 12.76 Вагонка деревянная Имитация бруса 120 500 р. Уточняйте у менеджера

Бытовки со сборкой на месте

Вид Наименование / тип Габаритные размеры (м.) Общая площадь (м²) Схема планировки Внутренняя отделка Наружная отделка Покупка / руб. Аренда (руб. / мес.)
Строительная бытовка со сборкой на месте №1 (вариант 1) 3x2.2 6.6 Оргалит-ДВП Имитация бруса 103 500 р. Уточняйте у менеджера
Строительная бытовка со сборкой на месте №1 (вариант 2) 3x2.2 6.6 Оргалит-ДВП Профлист 108 500 р. Уточняйте у менеджера
Строительная бытовка со сборкой на месте №1 (вариант 3) 3x2.2 6.6 Вагонка деревянная Имитация бруса 108 000 р. Уточняйте у менеджера
Строительная бытовка со сборкой на месте №2 (вариант 1) 4x2.2 8.8 Оргалит-ДВП Имитация бруса 108 500 р. Уточняйте у менеджера
Строительная бытовка со сборкой на месте №2 (вариант 2) 4x2.2 8.8 Оргалит-ДВП Профлист 113 500 р. Уточняйте у менеджера
Строительная бытовка со сборкой на месте №2 (вариант 3) 4x2.2 8.8 Вагонка деревянная Имитация бруса 113 000 р. Уточняйте у менеджера
Строительная бытовка со сборкой на месте №3 (вариант 1) 5.8x2.2 12.76 Оргалит-ДВП Имитация бруса 130 000 р. Уточняйте у менеджера
Строительная бытовка со сборкой на месте №3 (вариант 2) 5.8x2.2 12.76 Оргалит-ДВП Профлист 135 000 р. Уточняйте у менеджера
Строительная бытовка со сборкой на месте №3 (вариант 3) 5.8x2.2 12.76 Вагонка деревянная Имитация бруса 139 000 р. Уточняйте у менеджера
Строительная бытовка со сборкой на месте №4 (вариант 1) 5.8x2.2 12.76 Оргалит-ДВП Имитация бруса 131 000 р. Уточняйте у менеджера
Строительная бытовка со сборкой на месте №4 (вариант 2) 5.8x2.2 12.76 Оргалит-ДВП Профлист 136 000 р. Уточняйте у менеджера
Строительная бытовка со сборкой на месте №4 (вариант 3) 5.8x2.2 12.76 Вагонка деревянная Имитация бруса 140 500 р. Уточняйте у менеджера
Строительная бытовка со сборкой на месте №5 (вариант 1) 5.8x2.2 12.76 Оргалит-ДВП Имитация бруса 130 000 р. Уточняйте у менеджера
Строительная бытовка со сборкой на месте №5 (вариант 2) 5.8x2.2 12.76 Оргалит-ДВП Профлист 135 000 р. Уточняйте у менеджера
Строительная бытовка со сборкой на месте №5 (вариант 3) 5.8x2.2 12.76 Вагонка деревянная Имитация бруса 137 500 р. Уточняйте у менеджера
Строительная бытовка со сборкой на месте №6 (вариант 1) 5.8x2.2 12.76 Оргалит-ДВП Имитация бруса 130 500 р. Уточняйте у менеджера
Строительная бытовка со сборкой на месте №6 (вариант 2) 5.8x2.2 12.76 Оргалит-ДВП Профлист 135 500 р. Уточняйте у менеджера
Строительная бытовка со сборкой на месте №6 (вариант 3) 5.8x2.2 12.76 Вагонка деревянная Имитация бруса 139 000 р. Уточняйте у менеджера
Строительная бытовка со сборкой на месте №7 (вариант 1) 5.8x2.2 12.76 Оргалит-ДВП Имитация бруса 128 000 р. Уточняйте у менеджера
Строительная бытовка со сборкой на месте №7 (вариант 2) 5.8x2.2 12.76 Оргалит-ДВП Профлист 133 000 р. Уточняйте у менеджера
Строительная бытовка со сборкой на месте №7 (вариант 3) 5.8x2.2 12.76 Вагонка деревянная Имитация бруса 137 000 р. Уточняйте у менеджера
Строительная бытовка со сборкой на месте №8 (вариант 1) 5.8x2.2 12.76 Оргалит-ДВП Имитация бруса 129 000 р. Уточняйте у менеджера
Строительная бытовка со сборкой на месте №8 (вариант 2) 5.8x2.2 12.76 Оргалит-ДВП Профлист 134 000 р. Уточняйте у менеджера
Строительная бытовка со сборкой на месте №8 (вариант 3) 5.8x2.2 12.76 Вагонка деревянная Имитация бруса 138 500 р. Уточняйте у менеджера
Строительная бытовка со сборкой на месте №9 (вариант 1) 5.8x2.2 12.76 Оргалит-ДВП Имитация бруса 128 000 р. Уточняйте у менеджера
Строительная бытовка со сборкой на месте №9 (вариант 2) 5.8x2.2 12.76 Оргалит-ДВП Профлист 133 000 р. Уточняйте у менеджера
Строительная бытовка со сборкой на месте №9 (вариант 3) 5.8x2.2 12.76 Вагонка деревянная Имитация бруса 135 500 р. Уточняйте у менеджера
Строительная бытовка со сборкой на месте №4 (вариант 1) 5.8x2.2 12.76 Оргалит-ДВП Имитация бруса 131 000 р. Уточняйте у менеджера
Строительная бытовка со сборкой на месте №4 (вариант 2) 5.8x2.2 12.76 Оргалит-ДВП Профлист 136 000 р. Уточняйте у менеджера
Строительная бытовка со сборкой на месте №4 (вариант 3) 5.8x2.2 12.76 Вагонка деревянная Имитация бруса 140 500 р. Уточняйте у менеджера

Бытовки без внутренней отделки

Вид Наименование / тип Габаритные размеры (м.) Общая площадь (м²) Схема планировки Внутренняя отделка Наружная отделка Покупка / руб. Аренда (руб. / мес.)
Строительная бытовка без внутренней отделки №1 (вариант 1) 3x2.2 6.6 Без отделки Имитация бруса 91 500 р. Уточняйте у менеджера
Строительная бытовка без внутренней отделки №1 (вариант 2) 3x2.2 6.6 Без отделки Профлист 96 500 р. Уточняйте у менеджера
Строительная бытовка без внутренней отделки №1 (вариант 3) 3x2.2 6.6 Без отделки Плита OSB 9 мм. 96 000 р. Уточняйте у менеджера
Строительная бытовка без внутренней отделки №2 (вариант 1) 4x2.2 8.8 Без отделки Имитация бруса 96 500 р. Уточняйте у менеджера
Строительная бытовка без внутренней отделки №2 (вариант 2) 4x2.2 8.8 Без отделки Профлист 101 500 р. Уточняйте у менеджера
Строительная бытовка без внутренней отделки №2 (вариант 3) 4x2.2 8.8 Без отделки Плита OSB 9 мм. 101 000 р. Уточняйте у менеджера
Строительная бытовка без внутренней отделки №3 (вариант 1) 5.8x2.2 12.76 Без отделки Имитация бруса 112 000 р. Уточняйте у менеджера
Строительная бытовка без внутренней отделки №3 (вариант 2) 5.8x2.2 12.76 Без отделки Профлист 117 000 р. Уточняйте у менеджера
Строительная бытовка без внутренней отделки №3 (вариант 3) 5.8x2.2 12.76 Без отделки Плита OSB 9 мм. 115 000 р. Уточняйте у менеджера
Строительная бытовка без внутренней отделки №4 (вариант 1) 5.8x2.2 12.76 Без отделки Имитация бруса 113 000 р. Уточняйте у менеджера
Строительная бытовка без внутренней отделки №4 (вариант 2) 5.8x2.2 12.76 Без отделки Профлист 118 000 р. Уточняйте у менеджера
Строительная бытовка без внутренней отделки №4 (вариант 3) 5.8x2.2 12.76 Без отделки Плита OSB 9 мм. 116 000 р. Уточняйте у менеджера
Строительная бытовка без внутренней отделки №5 (вариант 1) 5.8x2.2 12.76 Без отделки Имитация бруса 112 000 р. Уточняйте у менеджера
Строительная бытовка без внутренней отделки №5 (вариант 2) 5.8x2.2 12.76 Без отделки Профлист 117 000 р. Уточняйте у менеджера
Строительная бытовка без внутренней отделки №5 (вариант 3) 5.8x2.2 12.76 Без отделки Плита OSB 9 мм. 115 000 р. Уточняйте у менеджера
Строительная бытовка без внутренней отделки №6 (вариант 1) 5.8x2.2 12.76 Без отделки Имитация бруса 112 500 р. Уточняйте у менеджера
Строительная бытовка без внутренней отделки №6 (вариант 2) 5.8x2.2 12.76 Без отделки Профлист 117 500 р. Уточняйте у менеджера
Строительная бытовка без внутренней отделки №6 (вариант 3) 5.8x2.2 12.76 Без отделки Плита OSB 9 мм. 115 500 р. Уточняйте у менеджера
Строительная бытовка без внутренней отделки №7 (вариант 1) 5.8x2.2 12.76 Без отделки Имитация бруса 110 000 р. Уточняйте у менеджера
Строительная бытовка без внутренней отделки №7 (вариант 2) 5.8x2.2 12.76 Без отделки Профлист 115 000 р. Уточняйте у менеджера
Строительная бытовка без внутренней отделки №7 (вариант 3) 5.8x2.2 12.76 Без отделки Плита OSB 9 мм. 113 000 р. Уточняйте у менеджера
Строительная бытовка без внутренней отделки №8 (вариант 1) 5.8x2.2 12.76 Без отделки Имитация бруса 111 000 р. Уточняйте у менеджера
Строительная бытовка без внутренней отделки №8 (вариант 2) 5.8x2.2 12.76 Без отделки Профлист 116 000 р. Уточняйте у менеджера
Строительная бытовка без внутренней отделки №8 (вариант 3) 5.8x2.2 12.76 Без отделки Плита OSB 9 мм. 114 000 р. Уточняйте у менеджера
Строительная бытовка без внутренней отделки №9 (вариант 1) 5.8x2.2 12.76 Без отделки Имитация бруса 110 000 р. Уточняйте у менеджера
Строительная бытовка без внутренней отделки №9 (вариант 2) 5.8x2.2 12.76 Без отделки Профлист 115 000 р. Уточняйте у менеджера
Строительная бытовка без внутренней отделки №9 (вариант 3) 5.8x2.2 12.76 Без отделки Плита OSB 9 мм. 113 000 р. Уточняйте у менеджера
Строительная бытовка без внутренней отделки №4 (вариант 1) 5.8x2.2 12.76 Без отделки Имитация бруса 113 000 р. Уточняйте у менеджера
Строительная бытовка без внутренней отделки №4 (вариант 2) 5.8x2.2 12.76 Без отделки Профлист 118 000 р. Уточняйте у менеджера
Строительная бытовка без внутренней отделки №4 (вариант 3) 5.8x2.2 12.76 Без отделки Плита OSB 9 мм. 116 000 р. Уточняйте у менеджера

Модульные сантехнические модули

Вид Наименование / тип Габаритные размеры (м.) Общая площадь (м²) Схема планировки Внутренняя отделка Наружная отделка Покупка / руб. Аренда (руб. / мес.)
Проект сантехнического модуля 6.0x4.8 6.0x4.8 28.8 Панели ПВХ Оцинкованный профлист 945 000 р. Уточняйте у менеджера
Проект сантехнического модуля 6.0x4.8 6.0x4.8 28.8 Панели ПВХ Оцинкованный профлист 1 250 000 р. Уточняйте у менеджера
Проект сантехнического модуля 6.0x7.2 6.0x7.2 43.2 Панели ПВХ Оцинкованный профлист 1 455 000 р. Уточняйте у менеджера
Проект сантехнического модуля 6.0x7.2 6.0x7.2 43.2 панели ПВХ Оцинкованный профлист 1 320 000 р. Уточняйте у менеджера
Проект сантехнического модуля 6.0x7.2 6.0x7.2 43.2 Панели ПВХ Оцинкованный профлист 1 645 000 р. Уточняйте у менеджера
Проект сантехнического модуля 6.0x12 6.0x12 72 Панели ПВХ Оцинкованный профлист 2 150 000 р. Уточняйте у менеджера

Блок контейнеры металлические

Вид Наименование / тип Габаритные размеры (м.) Общая площадь (м²) Схема планировки Внутренняя отделка Наружная отделка Покупка / руб. Аренда (руб. / мес.)
Блок контейнер металлический 3,0 x 2,4 - Оргалит ДВП 3x2.4 7.2 Оргалит-ДВП оцинкованный профлист 103 000 р. Уточняйте у менеджера
Блок контейнер металлический 3,0 x 2,4 - Вагонка ПВХ 3x2.4 7.2 Вагонка ПВХ оцинкованный профлист 135 500 р. Уточняйте у менеджера
Блок контейнер металлический 3,0 x 2,4 - Вагонка деревянная 3x2.4 7.2 Вагонка деревянная оцинкованный профлист 140 500 р. Уточняйте у менеджера
Блок контейнер металлический 4,0 x 2,4 - Оргалит ДВП 4x2.4 9.6 Оргалит-ДВП оцинкованный профлист 109 000 р. Уточняйте у менеджера
Блок контейнер металлический 4,0 x 2,4 - Вагонка ПВХ 4x2.4 9.6 Вагонка ПВХ оцинкованный профлист 138 000 р. Уточняйте у менеджера
Блок контейнер металлический 4,0 x 2,4 - Вагонка деревянная 4x2.4 9.6 Вагонка деревянная оцинкованный профлист 153 500 р. Уточняйте у менеджера
Блок контейнер металлический с тамбуром 5,85х2,4 5.85x2.4 14.04 Оргалит-ДВП оцинкованный профлист 130 500 р. 7 500 р.
Блок контейнер металлический с тамбуром 5,85х2,4 5.85x2.4 14.04 Вагонка ПВХ оцинкованный профлист 164 500 р. Уточняйте у менеджера
Блок контейнер металлический с тамбуром 5,85х2,4 5.85x2.4 14.04 Вагонка деревянная оцинкованный профлист 170 000 р. 8 500 р.
Блок контейнер металлический распашонка 5,85х2,4 5.85x2.4 14.04 Оргалит-ДВП оцинкованный профлист 145 500 р. 8 500 р.
Блок контейнер металлический распашонка 5,85х2,4 5.85x2.4 14.04 Вагонка ПВХ оцинкованный профлист 180 500 р. Уточняйте у менеджера
Блок контейнер металлический распашонка 5,85х2,4 5.85x2.4 14.04 Вагонка деревянная оцинкованный профлист 186 000 р. 9 500 р.
Блок контейнер металлический с кухней в тамбуре 5,85х2,4 5.85x2.4 14.04 Оргалит-ДВП оцинкованный профлист 133 500 р. Уточняйте у менеджера
Блок контейнер металлический с кухней в тамбуре 5,85х2,4 5.85x2.4 14.04 Вагонка ПВХ оцинкованный профлист 168 000 р. Уточняйте у менеджера
Блок контейнер металлический с кухней в тамбуре 5,85х2,4 5.85x2.4 14.04 Вагонка деревянная оцинкованный профлист 174 000 р. Уточняйте у менеджера
Блок контейнер металлический жилой 7,0 x 2,4 7x2.4 16.8 Оргалит-ДВП оцинкованный профлист 180 500 р. Уточняйте у менеджера
Блок контейнер металлический жилой 7,0 x 2,4 7x2.4 16.8 Вагонка ПВХ оцинкованный профлист 216 000 р. Уточняйте у менеджера
Блок контейнер металлический жилой 7,0 x 2,4 7x2.4 16.8 Вагонка деревянная оцинкованный профлист 225 000 р. Уточняйте у менеджера
Блок контейнер металлический с 8 кроватями 8x2.4 19.2 Оргалит-ДВП оцинкованный профлист 209 500 р. Уточняйте у менеджера
Блок контейнер металлический с 8 кроватями 8x2.4 19.2 Вагонка ПВХ оцинкованный профлист 250 000 р. Уточняйте у менеджера
Блок контейнер металлический с 8 кроватями 8x2.4 19.2 Вагонка деревянная оцинкованный профлист 260 000 р. Уточняйте у менеджера
Блок контейнер металлический 9,0 x 2,4 - Оргалит ДВП 9x2.4 21.6 Оргалит-ДВП оцинкованный профлист 235 500 р. Уточняйте у менеджера
Блок контейнер металлический 9,0 x 2,4 - Вагонка ПВХ 9x2.4 21.6 Вагонка ПВХ оцинкованный профлист 282 500 р. Уточняйте у менеджера
Блок контейнер металлический 9,0 x 2,4 - Вагонка деревянная 9x2.4 21.6 Вагонка деревянная оцинкованный профлист 296 000 р. Уточняйте у менеджера
Блок контейнер металлический с кухней и санузлом 12x2.4 28.8 Оргалит-ДВП оцинкованный профлист 322 500 р. Уточняйте у менеджера
Блок контейнер металлический с кухней и санузлом 12x2.4 28.8 Вагонка ПВХ оцинкованный профлист 365 000 р. Уточняйте у менеджера
Блок контейнер металлический с кухней и санузлом 12x2.4 28.8 Вагонка деревянная оцинкованный профлист 388 000 р. Уточняйте у менеджера
Блок контейнер металлический без тамбура 5,85х2,4 5.85x2.4 14.04 Оргалит-ДВП оцинкованный профлист 128 500 р. 6 500 р.
Блок контейнер металлический без тамбура 5,85х2,4 5.85x2.4 14.04 Вагонка ПВХ оцинкованный профлист 163 000 р. Уточняйте у менеджера
Блок контейнер металлический без тамбура 5,85х2,4 5.85x2.4 14.04 Вагонка деревянная оцинкованный профлист 168 000 р. 7 500 р.
Блок контейнер металлический с тамбуром 4,0 x 2,4 - Оргалит ДВП 4x2.4 9.6 Оргалит-ДВП оцинкованный профлист 113 500 р. Уточняйте у менеджера
Блок контейнер металлический с тамбуром 4,0 x 2,4 - Вагонка ПВХ 4x2.4 9.6 Вагонка ПВХ оцинкованный профлист 143 000 р. Уточняйте у менеджера
Блок контейнер металлический с тамбуром 4,0 x 2,4 - Вагонка деревянная 4x2.4 9.6 Вагонка деревянная оцинкованный профлист 159 500 р. Уточняйте у менеджера
Металлический блок контейнер с тамбуром 5,85х2,4 5.85x2.4 14.04 Оргалит-ДВП оцинкованный профлист 130 500 р. Уточняйте у менеджера
Металлический блок контейнер с тамбуром 5,85х2,4 5.85x2.4 14.04 Вагонка ПВХ оцинкованный профлист 164 500 р. Уточняйте у менеджера
Металлический блок контейнер с тамбуром 5,85х2,4 5.85x2.4 14.04 Вагонка деревянная оцинкованный профлист 170 000 р. 8 500 р.
Блок контейнер металлический с тамбуром 5,85х2,4 - Оргалит ДВП 5.85x2.4 14.04 Оргалит-ДВП оцинкованный профлист 135 000 р. Уточняйте у менеджера
Блок контейнер металлический с тамбуром 5,85х2,4 - Вагонка ПВХ 5.85x2.4 14.04 Вагонка ПВХ оцинкованный профлист 169 500 р. Уточняйте у менеджера
Блок контейнер металлический с тамбуром 5,85х2,4 - Вагонка деревянная 5.85x2.4 14.04 Вагонка деревянная оцинкованный профлист 176 000 р. Уточняйте у менеджера
Металлический блок контейнер с тамбуром 5,85х2,4 - Оргалит ДВП 5.85x2.4 14.04 Оргалит-ДВП оцинкованный профлист 135 000 р. Уточняйте у менеджера
Металлический блок контейнер с тамбуром 5,85х2,4 - Вагонка ПВХ 5.85x2.4 14.04 Вагонка ПВХ оцинкованный профлист 169 500 р. Уточняйте у менеджера
Металлический блок контейнер с тамбуром 5,85х2,4 - Вагонка деревянная 5.85x2.4 14.04 Вагонка деревянная оцинкованный профлист 176 000 р. Уточняйте у менеджера
Блок контейнер металлический распашонка 5,85х2,4 - Оргалит ДВП 5.85x2.4 14.04 Оргалит-ДВП оцинкованный профлист 145 500 р. Уточняйте у менеджера
Блок контейнер металлический распашонка 5,85х2,4 - Вагонка ПВХ 5.85x2.4 14.04 Вагонка ПВХ оцинкованный профлист 180 500 р. Уточняйте у менеджера
Блок контейнер металлический распашонка 5,85х2,4 - Вагонка деревянная 5.85x2.4 14.04 Вагонка деревянная оцинкованный профлист 186 000 р. Уточняйте у менеджера
Металлический блок контейнер распашонка 5,85х2,4 5.85x2.4 14.04 Оргалит-ДВП оцинкованный профлист 144 000 р. Уточняйте у менеджера
Металлический блок контейнер распашонка 5,85х2,4 5.85x2.4 14.04 Вагонка ПВХ оцинкованный профлист 178 000 р. Уточняйте у менеджера
Металлический блок контейнер распашонка 5,85х2,4 5.85x2.4 14.04 Вагонка деревянная оцинкованный профлист 183 000 р. Уточняйте у менеджера
Металлический блок контейнер распашонка 5,85х2,4 - Оргалит ДВП 5.85x2.4 14.04 Оргалит-ДВП оцинкованный профлист 144 000 р. Уточняйте у менеджера
Металлический блок контейнер распашонка 5,85х2,4 - Вагонка ПВХ 5.85x2.4 14.04 Вагонка ПВХ оцинкованный профлист 178 000 р. Уточняйте у менеджера
Металлический блок контейнер распашонка 5,85х2,4 - Вагонка деревянная 5.85x2.4 14.04 Вагонка деревянная оцинкованный профлист 183 000 р. Уточняйте у менеджера

Блок контейнеры раздевалки

Вид Наименование / тип Габаритные размеры (м.) Общая площадь (м²) Схема планировки Внутренняя отделка Наружная отделка Покупка / руб. Аренда (руб. / мес.)
Блок контейнер раздевалка №1 (вариант 2) 5.85x2.4 14.04 Вагонка деревянная оцинкованный профлист 211 500 р. 7 500 р.
Блок контейнер раздевалка №1 (вариант 1) 5.85x2.4 14.04 Оцинкованный профлист оцинкованный профлист 207 500 р. 8 500 р.
Блок контейнер раздевалка №1 (вариант 3) 5.85x2.4 14.04 ЛДСП оцинкованный профлист 215 000 р. 9 500 р.
Блок-контейнер под раздевалку №2 (вариант 2) 5.85x2.4 14.04 Вагонка деревянная оцинкованный профлист 218 000 р. 8 500 р.
Блок-контейнер под раздевалку №2 (вариант 1) 5.85x2.4 14.04 Оцинкованный профлист оцинкованный профлист 210 000 р. 9 500 р.
Блок-контейнер под раздевалку №2 (вариант 3) 5.85x2.4 14.04 ЛДСП оцинкованный профлист 219 500 р. 10 500 р.
Бытовка раздевалка №3 (вариант 2) 5.85x2.4 14.04 Вагонка деревянная оцинкованный профлист 229 500 р. 9 000 р.
Бытовка раздевалка №3 (вариант 1) 5.85x2.4 14.04 Оцинкованный профлист оцинкованный профлист 220 000 р. 10 000 р.
Бытовка раздевалка №3 (вариант 3) 5.85x2.4 14.04 ЛДСП оцинкованный профлист 233 500 р. 11 000 р.
Бытовка под раздевалку №4 (вариант 2) 8x2.4 19.2 Вагонка деревянная оцинкованный профлист 275 000 р. Уточняйте у менеджера
Бытовка под раздевалку №4 (вариант 1) 8x2.4 19.2 Оцинкованный профлист оцинкованный профлист 262 000 р. Уточняйте у менеджера
Бытовка под раздевалку №4 (вариант 3) 8x2.4 19.2 ЛДСП оцинкованный профлист 280 000 р. Уточняйте у менеджера

Блок контейнеры на шасси

Вид Наименование / тип Габаритные размеры (м.) Общая площадь (м²) Схема планировки Внутренняя отделка Наружная отделка Покупка / руб. Аренда (руб. / мес.)
Блок-контейнер на шасси 5,85х2,4 5.85x2.4 14.04 ЛДСП оцинкованный профлист 519 000 р. Уточняйте у менеджера
Блок-контейнер на шасси 5,85х2,4 5.85x2.4 14.04 Панели ПВХ оцинкованный профлист 509 000 р. Уточняйте у менеджера
Блок-контейнер на шасси 5,85х2,4 5.85x2.4 14.04 Вагонка деревянная оцинкованный профлист 490 500 р. Уточняйте у менеджера
Прицеп бытовка на шасси 5,85х2,4 5.85x2.4 14.04 ЛДСП оцинкованный профлист 531 000 р. Уточняйте у менеджера
Прицеп бытовка на шасси 5,85х2,4 5.85x2.4 14.04 Панели ПВХ оцинкованный профлист 521 000 р. Уточняйте у менеджера
Прицеп бытовка на шасси 5,85х2,4 5.85x2.4 14.04 Вагонка деревянная оцинкованный профлист 502 500 р. Уточняйте у менеджера
Вагончик на шасси 8,0 x 2,4 8x2.4 19.2 ЛДСП оцинкованный профлист 660 000 р. Уточняйте у менеджера
Вагончик на шасси 8,0 x 2,4 8x2.4 19.2 Панели ПВХ оцинкованный профлист 640 000 р. Уточняйте у менеджера
Вагончик на шасси 8,0 x 2,4 8x2.4 19.2 Вагонка деревянная оцинкованный профлист 620 000 р. Уточняйте у менеджера
Жилой вагончик на шасси 8,0 x 2,4 8x2.4 19.2 ЛДСП оцинкованный профлист 672 000 р. Уточняйте у менеджера
Жилой вагончик на шасси 8,0 x 2,4 8x2.4 19.2 Панели ПВХ оцинкованный профлист 652 000 р. Уточняйте у менеджера
Жилой вагончик на шасси 8,0 x 2,4 8x2.4 19.2 Вагонка деревянная оцинкованный профлист 632 000 р. Уточняйте у менеджера
Строительный вагончик на шасси 9,0 x 2,4 9x2.4 21.6 ЛДСП оцинкованный профлист 697 000 р. Уточняйте у менеджера
Строительный вагончик на шасси 9,0 x 2,4 9x2.4 21.6 Панели ПВХ оцинкованный профлист 677 000 р. Уточняйте у менеджера
Строительный вагончик на шасси 9,0 x 2,4 9x2.4 21.6 Вагонка деревянная оцинкованный профлист 667 000 р. Уточняйте у менеджера

Блок контейнеры сантехнические

Вид Наименование / тип Габаритные размеры (м.) Общая площадь (м²) Схема планировки Внутренняя отделка Наружная отделка Покупка / руб. Аренда (руб. / мес.)
Блок контейнер сантехнический №1 3x2.4 7.2 Вагонка ПВХ оцинкованный профлист 300 000 р. 13 500 р.
Блок контейнер сантехнический №3 5.85x2.4 14.04 Вагонка ПВХ оцинкованный профлист 369 000 р. 16 500 р.
Блок контейнер сантехнический №9 (автономный туалет) 5.85x2.4 14.04 Вагонка ПВХ оцинкованный профлист 499 000 р. Уточняйте у менеджера
Блок контейнер сантехнический №4 5.85x2.4 14.04 Вагонка ПВХ оцинкованный профлист 373 000 р. Уточняйте у менеджера
Блок контейнер сантехнический №6 5.85x2.4 14.04 Вагонка ПВХ оцинкованный профлист 379 500 р. 16 500 р.
Блок контейнер сантехнический №5 5.85x2.4 14.04 Вагонка ПВХ оцинкованный профлист 378 500 р. Уточняйте у менеджера
Блок контейнер сантехнический №8 (автономный душ) 5.85x2.4 14.04 Вагонка ПВХ оцинкованный профлист 482 000 р. Уточняйте у менеджера
Блок контейнер сантехнический №7 5.85x2.4 14.04 Вагонка ПВХ оцинкованный профлист 383 500 р. Уточняйте у менеджера
Блок контейнер сантехнический №2 5.85x2.4 14.04 Вагонка ПВХ оцинкованный профлист 367 500 р. Уточняйте у менеджера
Блок контейнер сантехнический №10 8x2.4 19.2 Вагонка ПВХ оцинкованный профлист 464 000 р. Уточняйте у менеджера
Блок контейнер сантехнический №11 8x2.4 19.2 Вагонка ПВХ оцинкованный профлист 493 000 р. Уточняйте у менеджера
Блок контейнер сантехнический №12 9x2.4 21.6 Вагонка ПВХ оцинкованный профлист 504 500 р. Уточняйте у менеджера
Блок контейнер сантехнический №13 9x2.4 21.6 Вагонка ПВХ оцинкованный профлист 552 500 р. Уточняйте у менеджера

Модульные офисные здания

Вид Наименование / тип Габаритные размеры (м.) Общая площадь (м²) Схема планировки Внутренняя отделка Наружная отделка Покупка / руб. Аренда (руб. / мес.)
Проект офисного здания 6.0x7,2 Панели МДФ 6.0x7.2 86.4 Панели МДФ Оцинкованный профлист 1 810 000 р. Уточняйте у менеджера
Проект офисного здания 4.8x6.0 Панели МДФ 4.8x6.0 57.6 Панели МДФ Оцинкованный профлист 1 395 000 р. Уточняйте у менеджера
Проект офисного здания 6.0x7,2 Панели МДФ 6.0x7.2 43.2 Панели МДФ Оцинкованный профлист 825 000 р. Уточняйте у менеджера
Проект офисного здания 12x24 Панели МДФ 12x24 288 Панели МДФ Оцинкованный профлист 7 540 000 р. Уточняйте у менеджера
Проект офисного здания 4,8х6.0 Панели МДФ 4.8x6.0 28.8 Панели МДФ Оцинкованный профлист 525 000 р. Уточняйте у менеджера
Проект офисного здания 9x19,2 Панели МДФ 9x19.2 172.8 Панели МДФ Оцинкованный профлист 4 370 000 р. Уточняйте у менеджера
Проект офисного здания 14x16,8 Панели МДФ 14x16.8 470.4 Панели МДФ Оцинкованный профлист 11 100 000 р. Уточняйте у менеджера
Проект офисного здания 12x16,8 Панели МДФ 12x16.8 201.6 Панели МДФ Оцинкованный профлист 5 195 000 р. Уточняйте у менеджера
Проект офисного здания 4,8х6.0 Панели ПВХ 4.8x6.0 28.8 Панели ПВХ Оцинкованный профлист 520 000 р. Уточняйте у менеджера
Проект офисного здания 4,8х6.0 ЛДСП 4.8x6.0 28.8 ЛДСП Оцинкованный профлист 550 000 р. Уточняйте у менеджера
Проект офисного здания 6.0x7,2 Панели ПВХ 6.0x7.2 43.2 Панели ПВХ Оцинкованный профлист 820 000 р. Уточняйте у менеджера
Проект офисного здания 6.0x7,2 ЛДСП 6.0x7.2 43.2 ЛДСП Оцинкованный профлист 850 000 р. Уточняйте у менеджера
Проект офисного здания 4.8x6.0 Панели ПВХ 4.8x6.0 57.6 Панели ПВХ Оцинкованный профлист 1 385 000 р. Уточняйте у менеджера
Проект офисного здания 4.8x6.0 ЛДСП 4.8x6.0 57.6 ЛДСП Оцинкованный профлист 1 420 000 р. Уточняйте у менеджера
Проект офисного здания 6.0x7,2 Панели ПВХ 6.0x7.2 86.4 Панели ПВХ Оцинкованный профлист 1 795 000 р. Уточняйте у менеджера
Проект офисного здания 6.0x7,2 ЛДСП 6.0x7.2 86.4 Панели ЛДСП Оцинкованный профлист 1 860 000 р. Уточняйте у менеджера
Проект офисного здания 9x19,2 Панели ПВХ 9x19.2 172.8 Панели ПВХ Оцинкованный профлист 4 345 000 р. Уточняйте у менеджера
Проект офисного здания 9x19,2 ЛДСП 9x19.2 172.8 ЛДСП Оцинкованный профлист 4 485 000 р. Уточняйте у менеджера
Проект офисного здания 12x24 Панели ПВХ 12x24 288 Панели ПВХ Оцинкованный профлист 7 505 000 р. Уточняйте у менеджера
Проект офисного здания 12x24 ЛДСП 12x24 288 ЛДСП Оцинкованный профлист 7 770 000 р. Уточняйте у менеджера
Проект офисного здания 14x16,8 Панели ПВХ 14x16.8 470.4 Панели ПВХ Оцинкованный профлист 11 065 000 р. Уточняйте у менеджера
Проект офисного здания 14x16,8 ЛДСП 14x16.8 470.4 ЛДСП Оцинкованный профлист 11 350 000 р. Уточняйте у менеджера
Проект офисного здания 12x16,8 Панели ПВХ 12x16.8 201.6 Панели ПВХ Оцинкованный профлист 5 155 000 р. Уточняйте у менеджера
Проект офисного здания 12x16,8 ЛДСП 12x16.8 201.6 ЛДСП Оцинкованный профлист 5 290 000 р. Уточняйте у менеджера
Проект офисного здания 4,8х6.0 Панели ПВХ 4.8x6.0 28.8 Панели ПВХ Оцинкованный профлист 660 000 р. Уточняйте у менеджера
Проект офисного здания 4,8х6.0 Панели МДФ 4.8x6.0 28.8 Панели МДФ Оцинкованный профлист 665 000 р. Уточняйте у менеджера
Проект офисного здания 4,8х6.0 ЛДСП 4.8x6.0 28.8 ЛДСП Оцинкованный профлист 690 000 р. Уточняйте у менеджера
Проект офисного здания 6.0x7,2 Панели ПВХ 6.0x7.2 43.2 Панели ПВХ Оцинкованный профлист 1 000 000 р. Уточняйте у менеджера
Проект офисного здания 6.0x7,2 Панели МДФ 6.0x7.2 43.2 Панели МДФ Оцинкованный профлист 1 005 000 р. Уточняйте у менеджера
Проект офисного здания 6.0x7,2 ЛДСП 6.0x7.2 43.2 ЛДСП Оцинкованный профлист 1 030 000 р. Уточняйте у менеджера
Проект офисного здания 4.8x6.0 Панели ПВХ 4.8x6.0 57.6 Панели ПВХ Оцинкованный профлист 1 525 000 р. Уточняйте у менеджера
Проект офисного здания 4.8x6.0 Панели МДФ 4.8x6.0 57.6 Панели МДФ Оцинкованный профлист 1 535 000 р. Уточняйте у менеджера
Проект офисного здания 4.8x6.0 ЛДСП 4.8x6.0 57.6 ЛДСП Оцинкованный профлист 1 560 000 р. Уточняйте у менеджера
Проект офисного здания 6.0x7,2 Панели ПВХ 6.0x7.2 86.4 Панели ПВХ Оцинкованный профлист 1 975 000 р. Уточняйте у менеджера
Проект офисного здания 6.0x7,2 Панели МДФ 6.0x7.2 86.4 Панели МДФ Оцинкованный профлист 1 990 000 р. Уточняйте у менеджера
Проект офисного здания 6.0x7,2 ЛДСП 6.0x7.2 86.4 Панели ЛДСП Оцинкованный профлист 2 040 000 р. Уточняйте у менеджера

Модульные общежития

Вид Наименование / тип Габаритные размеры (м.) Общая площадь (м²) Схема планировки Внутренняя отделка Наружная отделка Покупка / руб. Аренда (руб. / мес.)
Проект общежития из блок контейнеров 9x21,6 ЛДСП 9x21.6 194.4 ЛДСП Оцинкованный профлист 5 910 000 р. Уточняйте у менеджера
Проект общежития из блок контейнеров 13,5x19,2 ЛДСП 13.5x19.2 518.4 ЛДСП Оцинкованный профлист 13 475 000 р. Уточняйте у менеджера
Проект общежития из блок контейнеров 13,5x28,8 ЛДСП 13.5x28.8 777.6 ЛДСП Оцинкованный профлист 19 085 000 р. Уточняйте у менеджера
Проект общежития из блок контейнеров 13,5x26,4 ЛДСП 13.5x26.4 712.8 ЛДСП Оцинкованный профлист 18 095 000 р. Уточняйте у менеджера
Проект общежития из блок контейнеров 12x21,6 ЛДСП 12x21.6 518.4 ЛДСП Оцинкованный профлист 13 750 000 р. Уточняйте у менеджера
Проект общежития из блок контейнеров 12x24 ЛДСП 12x24 576 ЛДСП Оцинкованный профлист 15 460 000 р. Уточняйте у менеджера
Проект общежития из блок контейнеров 12X16.8 ЛДСП 12x16.8 201.6 ЛДСП Оцинкованный профлист 6 295 000 р. Уточняйте у менеджера
Проект общежития из блок контейнеров 14x24 ЛДСП 14x24 672 ЛДСП Оцинкованный профлист 18 090 000 р. Уточняйте у менеджера
Проект общежития из блок контейнеров 9x21,6 Плита OSB 9x21.6 194.4 Плита OSB 9 мм. Оцинкованный профлист 5 595 000 р. Уточняйте у менеджера
Проект общежития из блок контейнеров 9x21,6 Панели МДФ 9x21.6 194.4 Панели МДФ Оцинкованный профлист 5 735 000 р. Уточняйте у менеджера
Проект общежития из блок контейнеров 12x21,6 Плита OSB 12x21.6 518.4 Плита OSB 9 мм. Оцинкованный профлист 12 980 000 р. Уточняйте у менеджера
Проект общежития из блок контейнеров 12x21,6 Панели МДФ 12x21.6 518.4 Панели МДФ Оцинкованный профлист 13 340 000 р. Уточняйте у менеджера
Проект общежития из блок контейнеров 12x24 Панели OSB 12x24 576 Плита OSB 9 мм. Оцинкованный профлист 14 545 000 р. Уточняйте у менеджера
Проект общежития из блок контейнеров 12x24 Панели МДФ 12x24 576 Панели МДФ Оцинкованный профлист 14 995 000 р. Уточняйте у менеджера
Проект общежития из блок контейнеров 13,5x28,8 Плита OSB 13.5x28.8 777.6 Плита OSB 9 мм. Оцинкованный профлист 18 100 000 р. Уточняйте у менеджера
Проект общежития из блок контейнеров 13,5x28,8 Панели МДФ 13.5x28.8 777.6 Панели МДФ Оцинкованный профлист 18 635 000 р. Уточняйте у менеджера
Проект общежития из блок контейнеров 13,5x19,2 Плита OSB 13.5x19.2 518.4 Плита OSB 9 мм. Оцинкованный профлист 12 945 000 р. Уточняйте у менеджера
Проект общежития из блок контейнеров 13,5x19,2 Панели МДФ 13.5x19.2 518.4 Панели МДФ Оцинкованный профлист 13 195 000 р. Уточняйте у менеджера
Проект общежития из блок контейнеров 13,5x26,4 Плита OSB 13.5x26.4 712.8 Плита OSB 9 мм. Оцинкованный профлист 17 175 000 р. Уточняйте у менеджера
Проект общежития из блок контейнеров 13,5x26,4 панели МДФ 13.5x26.4 712.8 Панели МДФ Оцинкованный профлист 17 580 000 р. Уточняйте у менеджера
Проект общежития из блок контейнеров 12X16.8 Плита OSB 12x16.8 201.6 Плита OSB 9 мм. Оцинкованный профлист 5 855 000 р. Уточняйте у менеджера
Проект общежития из блок контейнеров 12X16.8 Панели МДФ 12x16.8 201.6 Панели МДФ Оцинкованный профлист 6 090 000 р. Уточняйте у менеджера
Проект общежития из блок контейнеров 14x24 Плита OSB 14x24 672 Плита OSB 9 мм. Оцинкованный профлист 17 145 000 р. Уточняйте у менеджера
Проект общежития из блок контейнеров 14x24 Панели МДФ 14x24 672 Панели МДФ Оцинкованный профлист 17 570 000 р. Уточняйте у менеджера

Модульные раздевалки

Вид Наименование / тип Габаритные размеры (м.) Общая площадь (м²) Схема планировки Внутренняя отделка Наружная отделка Покупка / руб. Аренда (руб. / мес.)
Проект модульной раздевалки 6.0х4,8 без тамбура 6.0x4.8 28.8 Вагонка деревянная Оцинкованный профлист 690 000 р. Уточняйте у менеджера
Проект модульной раздевалки 6.0х4,8 с тамбуром 6.0x4.8 28.8 Вагонка деревянная Оцинкованный профлист 725 000 р. Уточняйте у менеджера
Проект модульной раздевалки 6.0х7,2 6.0x7.2 43.2 Вагонка деревянная Оцинкованный профлист 1 050 000 р. Уточняйте у менеджера
Проект модульной раздевалки 6.0х9,6 6.0x9.6 57.6 Вагонка деревянная Оцинкованный профлист 1 290 000 р. Уточняйте у менеджера
Проект модульной раздевалки 6.0х12 6.0x12 72 Вагонка деревянная Оцинкованный профлист 1 925 000 р. Уточняйте у менеджера
Проект модульной раздевалки 6.0х14,4 6.0x14.4 86.4 Вагонка деревянная Оцинкованный профлист 1 950 000 р. Уточняйте у менеджера
Проект модульной раздевалки 6.0х4,8 без тамбура 6.0x4.8 28.8 OSB 9 мм. Оцинкованный профлист 665 000 р. Уточняйте у менеджера
Проект модульной раздевалки 6.0х4,8 без тамбура 6.0x4.8 28.8 ЛДСП Оцинкованный профлист 700 000 р. Уточняйте у менеджера
Проект модульной раздевалки 6.0х4,8 с тамбуром 6.0x4.8 28.8 OSB 9 мм. Оцинкованный профлист 710 000 р. Уточняйте у менеджера
Проект модульной раздевалки 6.0х4,8 с тамбуром 6.0x4.8 28.8 ЛДСП Оцинкованный профлист 780 000 р. Уточняйте у менеджера
Проект модульной раздевалки 6.0х7,2 6.0x7.2 43.2 OSB 9 мм. Оцинкованный профлист 1 005 000 р. Уточняйте у менеджера
Проект модульной раздевалки 6.0х7,2 6.0x7.2 43.2 ЛДСП Оцинкованный профлист 1 100 000 р. Уточняйте у менеджера
Проект модульной раздевалки 6.0х9,6 6.0x9.6 57.6 OSB 9 мм. Оцинкованный профлист 1 240 000 р. Уточняйте у менеджера
Проект модульной раздевалки 6.0х9,6 6.0x9.6 57.6 ЛДСП Оцинкованный профлист 1 340 000 р. Уточняйте у менеджера
Проект модульной раздевалки 6.0х12 6.0x12 72 OSB 9 мм. Оцинкованный профлист 1 850 000 р. Уточняйте у менеджера
Проект модульной раздевалки 6.0х12 6.0x12 72 ЛДСП Оцинкованный профлист 1 970 000 р. Уточняйте у менеджера
Проект модульной раздевалки 6.0х14,4 6.0x14.4 86.4 OSB 9 мм. Оцинкованный профлист 1 880 000 р. Уточняйте у менеджера
Проект модульной раздевалки 6.0х14,4 6.0x14.4 86.4 ЛДСП Оцинкованный профлист 1 995 000 р. Уточняйте у менеджера

Модульные столовые

Вид Наименование / тип Габаритные размеры (м.) Общая площадь (м²) Схема планировки Внутренняя отделка Наружная отделка Покупка / руб. Аренда (руб. / мес.)
ПРОЕКТ СТОЛОВОЙ ИЗ БЛОК КОНТЕЙНЕРОВ 9x12 9x12 108 ЛДСП Оцинкованный профлист 3 200 000 р. Уточняйте у менеджера
ПРОЕКТ СТОЛОВОЙ ИЗ БЛОК КОНТЕЙНЕРОВ 8x14.4 8x14.4 115.2 ЛДСП Оцинкованный профлист 3 370 000 р. Уточняйте у менеджера
ПРОЕКТ СТОЛОВОЙ ИЗ БЛОК КОНТЕЙНЕРОВ 12x21,6 12x21.6 259.2 ЛДСП Оцинкованный профлист 6 755 000 р. Уточняйте у менеджера
ПРОЕКТ СТОЛОВОЙ ИЗ БЛОК КОНТЕЙНЕРОВ 12x24 12x24 288 ЛДСП Оцинкованный профлист 7 150 000 р. Уточняйте у менеджера
ПРОЕКТ СТОЛОВОЙ ИЗ БЛОК КОНТЕЙНЕРОВ 12x26,4 12x26.4 316.8 ЛДСП Оцинкованный профлист 8 400 000 р. Уточняйте у менеджера
ПРОЕКТ СТОЛОВОЙ ИЗ БЛОК КОНТЕЙНЕРОВ 12x28,8 12x28.8 345.6 ЛДСП Оцинкованный профлист 8 500 000 р. Уточняйте у менеджера
ПРОЕКТ СТОЛОВОЙ ИЗ БЛОК КОНТЕЙНЕРОВ 9x12 9x12 108 Панели ПВХ Оцинкованный профлист 3 155 000 р. Уточняйте у менеджера
ПРОЕКТ СТОЛОВОЙ ИЗ БЛОК КОНТЕЙНЕРОВ 9x12 9x12 108 Панели МДФ Оцинкованный профлист 3 165 000 р. Уточняйте у менеджера
ПРОЕКТ СТОЛОВОЙ ИЗ БЛОК КОНТЕЙНЕРОВ 8x14.4 8x14.4 115.2 Панели ПВХ Оцинкованный профлист 3 310 000 р. Уточняйте у менеджера
ПРОЕКТ СТОЛОВОЙ ИЗ БЛОК КОНТЕЙНЕРОВ 8x14.4 8x14.4 115.2 Панели МДФ Оцинкованный профлист 3 320 000 р. Уточняйте у менеджера
ПРОЕКТ СТОЛОВОЙ ИЗ БЛОК КОНТЕЙНЕРОВ 12x21,6 12x21.6 259.2 Панели ПВХ Оцинкованный профлист 6 700 000 р. Уточняйте у менеджера
ПРОЕКТ СТОЛОВОЙ ИЗ БЛОК КОНТЕЙНЕРОВ 12x21,6 12x21.6 259.2 Панели МДФ Оцинкованный профлист 6 710 000 р. Уточняйте у менеджера
ПРОЕКТ СТОЛОВОЙ ИЗ БЛОК КОНТЕЙНЕРОВ 12x24 12x24 288 Панели ПВХ Оцинкованный профлист 7 070 000 р. Уточняйте у менеджера
ПРОЕКТ СТОЛОВОЙ ИЗ БЛОК КОНТЕЙНЕРОВ 12x24 12x24 288 Панели МДФ Оцинкованный профлист 7 080 000 р. Уточняйте у менеджера
ПРОЕКТ СТОЛОВОЙ ИЗ БЛОК КОНТЕЙНЕРОВ 12x26,4 12x26.4 316.8 Панели ПВХ Оцинкованный профлист 8 320 000 р. Уточняйте у менеджера
ПРОЕКТ СТОЛОВОЙ ИЗ БЛОК КОНТЕЙНЕРОВ 12x26,4 12x26.4 316.8 Панели МДФ Оцинкованный профлист 8 330 000 р. Уточняйте у менеджера
ПРОЕКТ СТОЛОВОЙ ИЗ БЛОК КОНТЕЙНЕРОВ 12x28,8 12x28.8 345.6 Панели ПВХ Оцинкованный профлист 8 420 000 р. Уточняйте у менеджера
ПРОЕКТ СТОЛОВОЙ ИЗ БЛОК КОНТЕЙНЕРОВ 12x28,8 12x28.8 345.6 Панели МДФ Оцинкованный профлист 8 430 000 р. Уточняйте у менеджера

Сантехнические блок контейнеры с душем

Вид Наименование / тип Габаритные размеры (м.) Общая площадь (м²) Схема планировки Внутренняя отделка Наружная отделка Покупка / руб. Аренда (руб. / мес.)
Блок контейнер c душем сантехнический №1 5.85x2.4 14.04 Вагонка ПВХ оцинкованный профлист 367 500 р. Уточняйте у менеджера
Блок контейнер сантехнический с автономным душем №2 5.85x2.4 14.04 Вагонка ПВХ оцинкованный профлист 482 000 р. Уточняйте у менеджера
Блок контейнер с душем сантехнический №3 5.85x2.4 14.04 Вагонка ПВХ оцинкованный профлист 378 500 р. Уточняйте у менеджера

Сантехнические блок контейнеры с туалетом

Вид Наименование / тип Габаритные размеры (м.) Общая площадь (м²) Схема планировки Внутренняя отделка Наружная отделка Покупка / руб. Аренда (руб. / мес.)
Сантехнический блок контейнер туалет №1 5.85x2.4 14.04 Вагонка ПВХ оцинкованный профлист 373 000 р. Уточняйте у менеджера
Блок контейнер туалет №2 5.85x2.4 14.04 Вагонка ПВХ оцинкованный профлист 383 500 р. Уточняйте у менеджера
Блок контейнер автономный туалет №3 5.85x2.4 14.04 Вагонка ПВХ оцинкованный профлист 478 000 р. Уточняйте у менеджера
Блок контейнер туалет сантехнический №4 8x2.4 19.2 Вагонка ПВХ оцинкованный профлист 493 000 р. Уточняйте у менеджера

Посты охраны двухэтажные

Вид Наименование / тип Габаритные размеры (м.) Общая площадь (м²) Схема планировки Внутренняя отделка Наружная отделка Покупка / руб. Аренда (руб. / мес.)
Пост охраны двухэтажный №1 (вариант 1) 2.5x2.4 12 Вагонка ПВХ оцинкованный профлист 233 000 р. Уточняйте у менеджера
Пост охраны двухэтажный №1 (вариант 2) 2.5x2.4 12 Вагонка деревянная оцинкованный профлист 242 000 р. Уточняйте у менеджера
Пост охраны двухэтажный №1 (вариант 3) 2.5x2.4 12 ЛДСП оцинкованный профлист 244 000 р. Уточняйте у менеджера
Пост охраны двухэтажный №2 (вариант 1) 3x2.4 14.4 Вагонка ПВХ оцинкованный профлист 227 000 р. Уточняйте у менеджера
Пост охраны двухэтажный №2 (вариант 2) 3x2.4 14.4 Вагонка деревянная оцинкованный профлист 237 000 р. Уточняйте у менеджера
Пост охраны двухэтажный №2 (вариант 3) 3x2.4 14.4 ЛДСП оцинкованный профлист 239 000 р. Уточняйте у менеджера
Пост охраны двухэтажный №3 (вариант 1) 4x2.4 15.6 Вагонка ПВХ оцинкованный профлист 259 000 р. Уточняйте у менеджера
Пост охраны двухэтажный №3 (вариант 2) 4x2.4 15.6 Вагонка деревянная оцинкованный профлист 271 000 р. Уточняйте у менеджера
Пост охраны двухэтажный №3 (вариант 3) 4x2.4 15.6 ЛДСП оцинкованный профлист 274 000 р. Уточняйте у менеджера
Пост охраны двухэтажный №4 (вариант 1) 4x2.4 19.2 Вагонка ПВХ оцинкованный профлист 263 000 р. Уточняйте у менеджера
Пост охраны двухэтажный №4 (вариант 2) 4x2.4 19.2 Вагонка деревянная оцинкованный профлист 275 000 р. Уточняйте у менеджера
Пост охраны двухэтажный №4 (вариант 3) 4x2.4 19.2 ЛДСП оцинкованный профлист 278 000 р. Уточняйте у менеджера

Посты охраны одноэтажные

Вид Наименование / тип Габаритные размеры (м.) Общая площадь (м²) Схема планировки Внутренняя отделка Наружная отделка Покупка / руб. Аренда (руб. / мес.)
Пост охраны №1 (вариант 1) 1.5x1.5 2.25 Оргалит-ДВП оцинкованный профлист 82 000 р. 5 000 р.
Пост охраны №1 (вариант 2) 1.5x1.5 2.25 Вагонка ПВХ оцинкованный профлист 85 000 р. 5 500 р.
Пост охраны №3 (вариант 1) 2.5x2.4 6 Оргалит-ДВП оцинкованный профлист 104 000 р. 5 500 р.
Пост охраны №3 (вариант 3) 2.5x2.4 6 Вагонка деревянная оцинкованный профлист 114 000 р. 6 500 р.
Пост охраны №4 (вариант 1) 3x2.4 7.2 Оргалит-ДВП оцинкованный профлист 146 000 р. 6 500 р.
Пост охраны №4 (вариант 2) 3x2.4 7.2 Вагонка ПВХ оцинкованный профлист 152 000 р. 7 000 р.
Пост охраны №4 (вариант 3) 3x2.4 7.2 Вагонка деревянная оцинкованный профлист 158 000 р. 7 500 р.
Пост охраны №5 (вариант 2) 5.85x2.4 14.04 Вагонка ПВХ оцинкованный профлист 212 000 р. Уточняйте у менеджера
Пост охраны №1 (вариант 3) 1.5x1.5 2.25 Вагонка деревянная оцинкованный профлист 90 000 р. 6 000 р.
Пост охраны №3 (вариант 2) 2.5x2.4 6 Вагонка ПВХ оцинкованный профлист 110 000 р. 6 000 р.
Пост охраны №5 (вариант 1) 5.85x2.4 14.04 Оргалит-ДВП оцинкованный профлист 195 000 р. Уточняйте у менеджера
Пост охраны №5 (вариант 3) 5.85x2.4 14.04 Вагонка деревянная оцинкованный профлист 217 000 р. Уточняйте у менеджера
Пост охраны №2 (вариант1) 2x2 4 Оргалит-ДВП оцинкованный профлист 93 000 р. Уточняйте у менеджера
Пост охраны №2 (вариант 2) 2x2 4 Вагонка ПВХ оцинкованный профлист 96 000 р. Уточняйте у менеджера
Пост охраны №2 (вариант 3) 2x2 4 Вагонка деревянная оцинкованный профлист 100 000 р. Уточняйте у менеджера

Модульные бытовки

Вид Наименование / тип Габаритные размеры (м.) Общая площадь (м²) Схема планировки Внутренняя отделка Наружная отделка Покупка / руб. Аренда (руб. / мес.)
Модульная бытовка 4.8x6.0 Вагонка деревянная 4.8x6.0 28.8 Вагонка деревянная Оцинкованный профлист 535 000 р. 20 500 р.
Модульная бытовка 4.8x6.0 Вагонка деревянная 4.8x6.0 28.8 Вагонка деревянная Оцинкованный профлист 610 000 р. Уточняйте у менеджера
Модульная бытовка 4.8x6.0 Вагонка деревянная 4.8x6.0 28.8 Вагонка деревянная Оцинкованный профлист 705 000 р. Уточняйте у менеджера
Модульная бытовка 7.2x6.0 Вагонка деревянная 7.2x6.0 43.2 Вагонка деревянная Оцинкованный профлист 905 000 р. Уточняйте у менеджера
Модульная бытовка 7.2x6.0 с деревянной вагонкой 7.2x6.0 43.2 Вагонка деревянная Оцинкованный профлист 890 000 р. Уточняйте у менеджера
Модульная бытовка 7.2x6.0 Вагонка деревянная 7.0x6.0 43.2 Вагонка деревянная Оцинкованный профлист 910 000 р. Уточняйте у менеджера
Модульная бытовка 4.8x6.0 Панели МДФ 4.8x6.0 28.8 Панели МДФ Оцинкованный профлист 525 000 р. 20 500 р.
Модульная бытовка 4.8x6.0 ЛДСП 4.8x6.0 28.8 ЛДСП Оцинкованный профлист 550 000 р. 20 500 р.
Модульная бытовка 4.8x6.0 Панели МДФ 4.8x6.0 28.8 Панели МДФ Оцинкованный профлист 600 000 р. Уточняйте у менеджера
Модульная бытовка 4.8x6.0 ЛДСП 4.8x6.0 28.8 ЛДСП Оцинкованный профлист 630 000 р. Уточняйте у менеджера
Модульная бытовка 4.8x6.0 Панели МДФ 4.8x6.0 28.8 Панели МДФ Оцинкованный профлист 685 000 р. Уточняйте у менеджера
Модульная бытовка 4.8x6.0 ЛДСП 4.8x6.0 28.8 ЛДСП Оцинкованный профлист 720 000 р. Уточняйте у менеджера
Модульная бытовка 7.2x6.0 Панели МДФ 7.2x6.0 43.2 Панели МДФ Оцинкованный профлист 900 000 р. Уточняйте у менеджера
Модульная бытовка 7.2x6.0 ЛДСП 7.2x6.0 43.2 ЛДСП Оцинкованный профлист 940 000 р. Уточняйте у менеджера
Модульная бытовка 7.2x6.0 Панели МДФ 7.2x6.0 43.2 Панели МДФ Оцинкованный профлист 885 000 р. Уточняйте у менеджера
Модульная бытовка 7.2x6.0 ЛДСП 7.2x6.0 43.2 ЛДСП Оцинкованный профлист 930 000 р. Уточняйте у менеджера
Модульная бытовка 7.2x6.0 с МДФ панелями 7.2x6.0 43.2 Панели МДФ Оцинкованный профлист 870 000 р. Уточняйте у менеджера
Модульная бытовка 7.2x6.0 с ЛДСП 7.2x6.0 43.2 ЛДСП Оцинкованный профлист 915 000 р. Уточняйте у менеджера
Модульная бытовка 4.8x6.0 Вагонка деревянная 4.8x6.0 28.8 Вагонка деревянная Оцинкованный профлист 675 000 р. Уточняйте у менеджера
Модульная бытовка 4.8x6.0 Панели МДФ 4.8x6.0 28.8 Панели МДФ Оцинкованный профлист 665 000 р. 20 500 р.
Модульная бытовка 4.8x6.0 ЛДСП 4.8x6.0 28.8 ЛДСП Оцинкованный профлист 690 000 р. Уточняйте у менеджера
Модульная бытовка 4.8x6.0 Вагонка деревянная 4.8x6.0 28.8 Вагонка деревянная Оцинкованный профлист 750 000 р. Уточняйте у менеджера
Модульная бытовка 4.8x6.0 Панели МДФ 4.8x6.0 28.8 Панели МДФ Оцинкованный профлист 740 000 р. Уточняйте у менеджера
Модульная бытовка 4.8x6.0 ЛДСП 4.8x6.0 28.8 ЛДСП Оцинкованный профлист 770 000 р. Уточняйте у менеджера
Модульная бытовка 4.8x6.0 Вагонка деревянная 4.8x6.0 28.8 Вагонка деревянная Оцинкованный профлист 845 000 р. Уточняйте у менеджера
Модульная бытовка 4.8x6.0 Панели МДФ 4.8x6.0 28.8 Панели МДФ Оцинкованный профлист 825 000 р. Уточняйте у менеджера
Модульная бытовка 4.8x6.0 ЛДСП 4.8x6.0 28.8 ЛДСП Оцинкованный профлист 860 000 р. Уточняйте у менеджера
Модульная бытовка 7.2x6.0 Вагонка деревянная 7.0x6.0 43.2 Вагонка деревянная Оцинкованный профлист 1 090 000 р. Уточняйте у менеджера
Модульная бытовка 7.2x6.0 Панели МДФ 7.2x6.0 43.2 Панели МДФ Оцинкованный профлист 1 080 000 р. Уточняйте у менеджера
Модульная бытовка 7.2x6.0 ЛДСП 7.2x6.0 43.2 ЛДСП Оцинкованный профлист 1 120 000 р. Уточняйте у менеджера
Модульная бытовка 7.2x6.0 Вагонка деревянная 7.2x6.0 43.2 Вагонка деревянная Оцинкованный профлист 1 085 000 р. Уточняйте у менеджера
Модульная бытовка 7.2x6.0 Панели МДФ 7.2x6.0 43.2 Панели МДФ Оцинкованный профлист 1 065 000 р. Уточняйте у менеджера
Модульная бытовка 7.2x6.0 ЛДСП 7.2x6.0 43.2 ЛДСП Оцинкованный профлист 1 110 000 р. Уточняйте у менеджера
Модульная бытовка 7.2x6.0 с деревянной вагонкой 7.2x6.0 43.2 Вагонка деревянная Оцинкованный профлист 1 070 000 р. Уточняйте у менеджера
Модульная бытовка 7.2x6.0 с МДФ панелями 7.2x6.0 43.2 Панели МДФ Оцинкованный профлист 1 050 000 р. Уточняйте у менеджера
Модульная бытовка 7.2x6.0 с ЛДСП 7.2x6.0 43.2 ЛДСП Оцинкованный профлист 1 095 000 р. Уточняйте у менеджера

Модульные штабы строительства

Вид Наименование / тип Габаритные размеры (м.) Общая площадь (м²) Схема планировки Внутренняя отделка Наружная отделка Покупка / руб. Аренда (руб. / мес.)
Проект модульный штаб строительства 6.0x4.8 Панели МДФ 6.0x4.8 28.8 Панели МДФ Оцинкованный профлист 525 000 р. Уточняйте у менеджера
Проект модульный штаб строительства 6.0x7.2 Панели МДФ 6.0x7.2 43.2 Панели МДФ Оцинкованный профлист 1 060 000 р. Уточняйте у менеджера
Проект модульный штаб строительства 6.0x9,6 Панели МДФ 6.0x9.6 57.6 Панели МДФ Оцинкованный профлист 1 395 000 р. Уточняйте у менеджера
Проект модульный штаб строительства 6.0x14,4 Панели МДФ 6.0x14.4 86.4 Панели МДФ Оцинкованный профлист 2 190 000 р. Уточняйте у менеджера
Проект модульный штаб строительства 6.0x14,4 Панели МДФ 6.0x14.4 172.8 Панели МДФ Оцинкованный профлист 4 710 000 р. Уточняйте у менеджера
Проект модульный штаб строительства 12x12 Панели МДФ 12x12 288 Панели МДФ Оцинкованный профлист 7 340 000 р. Уточняйте у менеджера
Проект модульный штаб строительства 8.4x12 Панели МДФ 8.4x12 201.6 Панели МДФ Оцинкованный профлист 5 730 000 р. Уточняйте у менеджера
Проект модульный штаб строительства 6.0x4.8 Панели ПВХ 6.0x4.8 28.8 Панели ПВХ Оцинкованный профлист 520 000 р. Уточняйте у менеджера
Проект модульный штаб строительства 6.0x4.8 ЛДСП 6.0x4.8 28.8 ЛДСП Оцинкованный профлист 550 000 р. Уточняйте у менеджера
Проект модульный штаб строительства 6.0x7.2 Панели ПВХ 6.0x7.2 43.2 Панели ПВХ Оцинкованный профлист 1 055 000 р. Уточняйте у менеджера
Проект модульный штаб строительства 6.0x7.2 ЛДСП 7.2x6.0 43.2 ЛДСП Оцинкованный профлист 1 095 000 р. Уточняйте у менеджера
Проект модульный штаб строительства 6.0x9,6 Панели ПВХ 6.0x9.6 57.6 Панели ПВХ Оцинкованный профлист 1 380 000 р. Уточняйте у менеджера
Проект модульный штаб строительства 6.0x9,6 ЛДСП 6.0x9.6 57.6 ЛДСП Оцинкованный профлист 1 430 000 р. Уточняйте у менеджера
Проект модульный штаб строительства 6.0x14,4 Панели ПВХ 6.0x14.4 86.4 Панели ПВХ Оцинкованный профлист 2 160 000 р. Уточняйте у менеджера
Проект модульный штаб строительства 6.0x14,4 ЛДСП 6.0x14.4 86.4 ЛДСП Оцинкованный профлист 2 220 000 р. Уточняйте у менеджера
Проект модульный штаб строительства 6.0x14,4 Панели ПВХ 6.0x14.4 172.8 Панели ПВХ Оцинкованный профлист 4 680 000 р. Уточняйте у менеджера
Проект модульный штаб строительства 6.0x14,4 ЛДСП 6.0x14.4 172.8 ЛДСП Оцинкованный профлист 4 830 000 р. Уточняйте у менеджера
Проект модульный штаб строительства 12x12 Панели ПВХ 12x12 288 Панели ПВХ Оцинкованный профлист 7 290 000 р. Уточняйте у менеджера
Проект модульный штаб строительства 12x12 ЛДСП 12x12 288 ЛДСП Оцинкованный профлист 7 575 000 р. Уточняйте у менеджера
Проект модульный штаб строительства 8.4x12 Панели ПВХ 8.4x12 201.6 Панели ПВХ Оцинкованный профлист 5 690 000 р. Уточняйте у менеджера
Проект модульный штаб строительства 8.4x12 ЛДСП 8.4x12 201.6 ЛДСП Оцинкованный профлист 5 840 000 р. Уточняйте у менеджера

Модульные проходные

Вид Наименование / тип Габаритные размеры (м.) Общая площадь (м²) Схема планировки Внутренняя отделка Наружная отделка Покупка / руб. Аренда (руб. / мес.)
Проект модульный проходной 6.0x4.8 6.0x4.8 28.8 ЛДСП Оцинкованный профлист 770 000 р. Уточняйте у менеджера
Проект модульный проходной 6.0x7.2 6.0x7.2 43.2 ЛДСП Оцинкованный профлист 1 300 000 р. Уточняйте у менеджера
Проект модульный проходной 6.0x7.2 6.0x7.2 43.2 ЛДСП Оцинкованный профлист 1 270 000 р. Уточняйте у менеджера
Проект модульный проходной 6.0x9.6 6.0x9.6 57.6 ЛДСП Оцинкованный профлист 1 585 000 р. Уточняйте у менеджера
Проект модульный проходной 6.0x12 6.0x12 72 ЛДСП Оцинкованный профлист 2 040 000 р. Уточняйте у менеджера
Проект модульный проходной 6.0x12 6.0x12 144 ЛДСП Оцинкованный профлист 4 380 000 р. Уточняйте у менеджера
Проект модульный проходной 6.0x4.8 6.0x4.8 28.8 Панели МДФ Оцинкованный профлист 745 000 р. Уточняйте у менеджера
Проект модульный проходной 6.0x4.8 6.0x4.8 28.8 Панели ПВХ Оцинкованный профлист 740 000 р. Уточняйте у менеджера
Проект модульный проходной 6.0x7.2 6.0x7.2 43.2 Панели МДФ Оцинкованный профлист 1 170 000 р. Уточняйте у менеджера
Проект модульный проходной 6.0x7.2 6.0x7.2 43.2 Панели ПВХ Оцинкованный профлист 1 160 000 р. Уточняйте у менеджера
Проект модульный проходной 6.0x7.2 6.0x7.2 43.2 Панели МДФ Оцинкованный профлист 1 230 000 р. Уточняйте у менеджера
Проект модульный проходной 6.0x7.2 6.0x7.2 43.2 Панели ПВХ Оцинкованный профлист 1 215 000 р. Уточняйте у менеджера
Проект модульный проходной 6.0x9.6 6.0x9.6 57.6 Панели МДФ Оцинкованный профлист 1 540 000 р. Уточняйте у менеджера
Проект модульный проходной 6.0x9.6 6.0x9.6 57.6 Панели ПВХ Оцинкованный профлист 1 535 000 р. Уточняйте у менеджера
Проект модульный проходной 6.0x12 6.0x12 72 Панели МДФ Оцинкованный профлист 1 990 000 р. Уточняйте у менеджера
Проект модульный проходной 6.0x12 6.0x12 72 Панели ПВХ Оцинкованный профлист 1 970 000 р. Уточняйте у менеджера
Проект модульный проходной 6.0x12 6.0x12 144 Панели МДФ Оцинкованный профлист 4 270 000 р. Уточняйте у менеджера
Проект модульный проходной 6.0x12 6.0x12 144 Панели ПВХ Оцинкованный профлист 4 245 000 р. Уточняйте у менеджера

Посты охраны с санузлом

Вид Наименование / тип Габаритные размеры (м.) Общая площадь (м²) Схема планировки Внутренняя отделка Наружная отделка Покупка / руб. Аренда (руб. / мес.)
Пост охраны с санузлом №1 (вариант 1) 3x2.4 7.2 Вагонка ПВХ оцинкованный профлист 135 000 р. Уточняйте у менеджера
Пост охраны с санузлом №1 (вариант 2) 3x2.4 7.2 Вагонка деревянная оцинкованный профлист 141 000 р. Уточняйте у менеджера
Пост охраны с санузлом №1 (вариант 3) 3x2.4 7.2 ЛДСП оцинкованный профлист 143 000 р. Уточняйте у менеджера
Пост охраны с санузлом №2 (вариант 1) 4x2.4 9.6 Вагонка ПВХ оцинкованный профлист 149 000 р. Уточняйте у менеджера
Пост охраны с санузлом №2 (вариант 2) 4x2.4 9.6 Вагонка деревянная оцинкованный профлист 158 000 р. Уточняйте у менеджера
Пост охраны с санузлом №2 (вариант 3) 4x2.4 9.6 ЛДСП оцинкованный профлист 159 000 р. Уточняйте у менеджера
Пост охраны с санузлом №3 (вариант 1) 5x2.4 12 Вагонка ПВХ оцинкованный профлист 166 000 р. Уточняйте у менеджера
Пост охраны с санузлом №3 (вариант 2) 5x2.4 12 Вагонка деревянная оцинкованный профлист 169 500 р. Уточняйте у менеджера
Пост охраны с санузлом №3 (вариант 3) 5x2.4 12 ЛДСП оцинкованный профлист 171 500 р. Уточняйте у менеджера
Пост охраны с санузлом №4 (вариант 1) 5.85x2.4 14.04 Вагонка ПВХ оцинкованный профлист 200 000 р. Уточняйте у менеджера
Пост охраны с санузлом №4 (вариант 2) 5.85x2.4 14.04 Вагонка деревянная оцинкованный профлист 210 000 р. Уточняйте у менеджера
Пост охраны с санузлом №4 (вариант 3) 5.85x2.4 14.04 ЛДСП оцинкованный профлист 212 500 р. Уточняйте у менеджера

Посты охраны с комнатой отдыха

Вид Наименование / тип Габаритные размеры (м.) Общая площадь (м²) Схема планировки Внутренняя отделка Наружная отделка Покупка / руб. Аренда (руб. / мес.)
Пост охраны с комнатой отдыха №1 (вариант 1) 4x2.4 9.6 Вагонка ПВХ оцинкованный профлист 146 500 р. Уточняйте у менеджера
Пост охраны с комнатой отдыха №1 (вариант 2) 4x2.4 9.6 Вагонка деревянная оцинкованный профлист 154 000 р. Уточняйте у менеджера
Пост охраны с комнатой отдыха №1 (вариант 3) 4x2.4 9.6 ЛДСП оцинкованный профлист 156 000 р. Уточняйте у менеджера
Пост охраны с комнатой отдыха №2 (вариант 1) 5x2.4 12 Вагонка ПВХ оцинкованный профлист 161 500 р. Уточняйте у менеджера
Пост охраны с комнатой отдыха №2 (вариант 2) 5x2.4 12 Вагонка деревянная оцинкованный профлист 170 000 р. Уточняйте у менеджера
Пост охраны с комнатой отдыха №2 (вариант 3) 5x2.4 12 ЛДСП оцинкованный профлист 173 000 р. Уточняйте у менеджера
Пост охраны с комнатой отдыха №3 (вариант 1) 5.85x2.4 14.04 Вагонка ПВХ оцинкованный профлист 200 000 р. Уточняйте у менеджера
Пост охраны с комнатой отдыха №3 (вариант 2) 5.85x2.4 14.04 Вагонка деревянная оцинкованный профлист 210 000 р. Уточняйте у менеджера
Пост охраны с комнатой отдыха №3 (вариант 3) 5.85x2.4 14.04 ЛДСП оцинкованный профлист 212 000 р. Уточняйте у менеджера
Пост охраны с комнатой отдыха №4 (вариант 1) 5.85x2.4 14.04 Вагонка ПВХ оцинкованный профлист 207 000 р. Уточняйте у менеджера
Пост охраны с комнатой отдыха №4 (вариант 2) 5.85x2.4 14.04 Вагонка деревянная оцинкованный профлист 217 500 р. Уточняйте у менеджера
Пост охраны с комнатой отдыха №4 (вариант 3) 5.85x2.4 14.04 ЛДСП оцинкованный профлист 221 000 р. Уточняйте у менеджера

Посты охраны с проходной

Вид Наименование / тип Габаритные размеры (м.) Общая площадь (м²) Схема планировки Внутренняя отделка Наружная отделка Покупка / руб. Аренда (руб. / мес.)
Пост охраны с проходной №1 (вариант 1) 3x2.4 7.2 Вагонка ПВХ оцинкованный профлист 145 500 р. Уточняйте у менеджера
Пост охраны с проходной №1 (вариант 2) 3x2.4 7.2 Вагонка деревянная оцинкованный профлист 152 000 р. Уточняйте у менеджера
Пост охраны с проходной №1 (вариант 3) 3x2.4 7.2 ЛДСП оцинкованный профлист 154 000 р. Уточняйте у менеджера
Пост охраны с проходной №2 (вариант 1) 4x2.4 9.6 Вагонка ПВХ оцинкованный профлист 151 500 р. Уточняйте у менеджера
Пост охраны с проходной №2 (вариант 2) 4x2.4 9.6 Вагонка деревянная оцинкованный профлист 159 000 р. Уточняйте у менеджера
Пост охраны с проходной №2 (вариант 3) 4x2.4 9.6 ЛДСП оцинкованный профлист 161 000 р. Уточняйте у менеджера
Пост охраны с проходной №3 (вариант 1) 5.85x2.4 14.04 Вагонка ПВХ оцинкованный профлист 213 500 р. Уточняйте у менеджера
Пост охраны с проходной №3 (вариант 2) 5.85x2.4 14.04 Вагонка деревянная оцинкованный профлист 217 000 р. Уточняйте у менеджера
Пост охраны с проходной №3 (вариант 3) 5.85x2.4 14.04 ЛДСП оцинкованный профлист 235 000 р. Уточняйте у менеджера
Пост охраны с проходной №4 (вариант 1) 8x2.4 19.2 Вагонка ПВХ оцинкованный профлист 274 000 р. Уточняйте у менеджера
Пост охраны с проходной №4 (вариант 2) 8x2.4 19.2 Вагонка деревянная оцинкованный профлист 280 000 р. Уточняйте у менеджера
Пост охраны с проходной №4 (вариант 3) 8x2.4 19.2 ЛДСП оцинкованный профлист 288 000 р. Уточняйте у менеджера

Посты охраны из сэндвич панелей

Вид Наименование / тип Габаритные размеры (м.) Общая площадь (м²) Схема планировки Внутренняя отделка Наружная отделка Покупка / руб. Аренда (руб. / мес.)
Пост охраны из сэндвич панелей №1 (вариант 1) 1.5x2 3 Сэндвич панели сэндвич панели 182 500 р. Уточняйте у менеджера
Пост охраны из сэндвич панелей №1 (вариант 2) 1.5x2 3 Сэндвич панели сэндвич панели 198 500 р. Уточняйте у менеджера
Пост охраны из сэндвич панелей №1 (вариант 3) 1.5x2 3 Сэндвич панели сэндвич панели 200 500 р. Уточняйте у менеджера
Пост охраны из сэндвич панелей №2 (вариант 1) 2x2 4 Сэндвич панели сэндвич панели 189 000 р. Уточняйте у менеджера
Пост охраны из сэндвич панелей №2 (вариант 2) 2x2 4 Сэндвич панели сэндвич панели 207 000 р. Уточняйте у менеджера
Пост охраны из сэндвич панелей №2 (вариант 3) 2x2 4 Сэндвич панели сэндвич панели 209 000 р. Уточняйте у менеджера
Пост охраны из сэндвич панелей №3 (вариант 1) 2x2.4 4.8 Сэндвич панели сэндвич панели 196 000 р. Уточняйте у менеджера
Пост охраны из сэндвич панелей №3 (вариант 2) 2x2.4 4.8 Сэндвич панели сэндвич панели 216 000 р. Уточняйте у менеджера
Пост охраны из сэндвич панелей №3 (вариант 3) 2x2.4 4.8 Сэндвич панели сэндвич панели 218 000 р. Уточняйте у менеджера
Пост охраны из сэндвич панелей №4 (вариант 1) 2.4x2.4 5.76 Сэндвич панели сэндвич панели 203 000 р. Уточняйте у менеджера
Пост охраны из сэндвич панелей №4 (вариант 2) 2.4x2.4 5.76 Сэндвич панели сэндвич панели 225 000 р. Уточняйте у менеджера
Пост охраны из сэндвич панелей №4 (вариант 3) 2.4x2.4 5.76 Сэндвич панели сэндвич панели 227 000 р. Уточняйте у менеджера

Блок контейнеры офисные

Вид Наименование / тип Габаритные размеры (м.) Общая площадь (м²) Схема планировки Внутренняя отделка Наружная отделка Покупка / руб. Аренда (руб. / мес.)
Блок контейнер офисный с окном №1 (вариант 1) 5.85x2.4 14.04 Панели ПВХ оцинкованный профлист 258 000 р. 8 500 р.
Блок-контейнер офис с тамбуром №1 (вариант 3) 5.85x2.4 14.04 ЛДСП оцинкованный профлист 263 000 р. 10 500 р.
Модульный офис из блок контейнера №1 (вариант 2) 5.85x2.4 14.04 Панели МДФ оцинкованный профлист 260 000 р. 11 500 р.
Блок-контейнер под офис №2 (вариант 1) 5.85x2.4 14.04 Панели ПВХ оцинкованный профлист 281 000 р. 9 000 р.
Блок контейнер офисный с двумя окнами №2 (вариант 3) 5.85x2.4 14.04 ЛДСП оцинкованный профлист 287 000 р. 11 000 р.
Блок-контейнер офисный, двухкомнатный №2 (вариант 2) 5.85x2.4 14.04 Панели МДФ оцинкованный профлист 285 000 р. 13 000 р.
Бытовка офис распашонка №3 (вариант 1) 5.85x2.4 14.04 Панели ПВХ оцинкованный профлист 289 000 р. Уточняйте у менеджера
Офисный блок контейнер распашонка с тамбуром №3 (вариант 3) 5.85x2.4 14.04 ЛДСП оцинкованный профлист 297 000 р. Уточняйте у менеджера
Офис бытовка с тамбуром №3 (вариант 2) 5.85x2.4 14.04 Панели МДФ оцинкованный профлист 292 000 р. Уточняйте у менеджера
Бытовка под офис №4 (вариант 1) 5.85x2.4 14.04 Панели ПВХ оцинкованный профлист 290 000 р. 9 500 р.
Офисная бытовка с окнами №4 (вариант 3) 5.85x2.4 14.04 ЛДСП оцинкованный профлист 298 000 р. 11 500 р.
Бытовка офисная №4 (вариант 2) 5.85x2.4 14.04 Панели МДФ оцинкованный профлист 293 000 р. 13 500 р.
Блок-контейнер офисный с ПВХ отделкой №5 (вариант 1) 5.85x2.4 14.04 Панели ПВХ оцинкованный профлист 308 000 р. Уточняйте у менеджера
Блок-контейнер офисный с туалетом № 5 (вариант 2) 5.85x2.4 14.04 Панели МДФ оцинкованный профлист 312 000 р. Уточняйте у менеджера
Блок-контейнер офисный с тамбуром и санузлом №5 (вариант 3) 5.85x2.4 14.04 ЛДСП оцинкованный профлист 314 000 р. Уточняйте у менеджера
Блок контейнер офисный с туалетом №6 (вариант 1) 5.85x2.4 14.04 Панели ПВХ оцинкованный профлист 308 500 р. Уточняйте у менеджера
Офисный блок-контейнер с тамбуром и туалетом № 6 (вариант 2) 5.85x2.4 14.04 Панели МДФ оцинкованный профлист 311 000 р. Уточняйте у менеджера
Офисный блок-контейнер с отделкой ЛДСП №6 (вариант 3) 5.85x2.4 14.04 ЛДСП оцинкованный профлист 317 000 р. Уточняйте у менеджера
Офисный блок-контейнер с перегородками № 7 (вариант 1) 5.85x2.4 14.04 Панели ПВХ оцинкованный профлист 314 500 р. Уточняйте у менеджера
Блок контейнер офисный с перегородками и туалетом №7 (вариант 2) 5.85x2.4 14.04 Панели МДФ оцинкованный профлист 317 000 р. Уточняйте у менеджера
Блок контейнер офисный с перегородками №7 (вариант 3) 5.85x2.4 14.04 ЛДСП оцинкованный профлист 320 000 р. Уточняйте у менеджера
Офисный блок-контейнер с тамбуром № 8 (вариант 1) 5.85x2.4 14.04 Панели ПВХ оцинкованный профлист 332 000 р. Уточняйте у менеджера
Блок-контейнер офисный с МДФ отделкой № 8 (вариант 2) 5.85x2.4 14.04 Панели МДФ оцинкованный профлист 333 000 р. Уточняйте у менеджера
Офисный блок-контейнер с ЛДСП отделкой №8 (вариант 3) 5.85x2.4 14.04 ЛДСП оцинкованный профлист 337 000 р. Уточняйте у менеджера
Офисный блок контейнер с окном № 9 (вариант 1) 5.85x2.4 14.04 Панели ПВХ оцинкованный профлист 332 000 р. Уточняйте у менеджера
Блок контейнер офисный с отделкой МДФ № 9 (вариант 2) 5.85x2.4 14.04 Панели МДФ оцинкованный профлист 333 000 р. Уточняйте у менеджера
Блок контейнер офисный с унитазом и душем №9 (вариант 3) 5.85x2.4 14.04 ЛДСП оцинкованный профлист 337 000 р. Уточняйте у менеджера
Блок-контейнер офисный с санузлом № 10 (вариант 1) 5.85x2.4 14.04 Панели ПВХ оцинкованный профлист 331 500 р. Уточняйте у менеджера
Блок-контейнер офисный с МДФ отделкой №10 (вариант 2) 5.85x2.4 14.04 Панели МДФ оцинкованный профлист 334 000 р. Уточняйте у менеджера
Офисный блок-контейнер с двумя комнатами №10 (вариант 3) 5.85x2.4 14.04 ЛДСП оцинкованный профлист 337 500 р. Уточняйте у менеджера

Блок контейнеры прорабские

Вид Наименование / тип Габаритные размеры (м.) Общая площадь (м²) Схема планировки Внутренняя отделка Наружная отделка Покупка / руб. Аренда (руб. / мес.)
Прорабский блок-контейнер №1 (вариант 1) 5.85x2.4 14.04 ДВПО оцинкованный профлист 215 000 р. 8 500 р.
Прорабский блок-контейнер №1 (вариант 2) 5.85x2.4 14.04 Вагонка деревянная оцинкованный профлист 216 000 р. 8 500 р.
Прорабский блок-контейнер №1 (вариант 3) 5.85x2.4 14.04 ЛДСП оцинкованный профлист 220 000 р. 10 500 р.
Блок контейнер прорабская с раздевалкой №3 (вариант 1) 5.85x2.4 14.04 ДВПО оцинкованный профлист 221 000 р. 9 000 р.
Блок контейнер прорабский с раздевалкой №3 (вариант 2) 5.85x2.4 14.04 Вагонка деревянная оцинкованный профлист 225 000 р. 9 000 р.
Блок контейнер прорабская с тамбуром №3 (вариант 3) 5.85x2.4 14.04 ЛДСП оцинкованный профлист 228 000 р. 11 000 р.
Блок контейнер прорабская №2 (вариант 1) 5.85x2.4 14.04 ДВПО оцинкованный профлист 225 000 р. Уточняйте у менеджера
Блок контейнер прорабская №2 (вариант 2) 5.85x2.4 14.04 Вагонка деревянная оцинкованный профлист 228 000 р. Уточняйте у менеджера
Блок контейнер прорабская №2 (вариант 3) 5.85x2.4 14.04 ЛДСП оцинкованный профлист 230 000 р. Уточняйте у менеджера
Блок-контейнер прорабский №4 (вариант 1) 5.85x2.4 14.04 ДВПО оцинкованный профлист 226 000 р. 10 500 р.
Блок-контейнер прорабский №4 (вариант 2) 5.85x2.4 14.04 Вагонка деревянная оцинкованный профлист 229 000 р. 10 500 р.
Прорабский блок-контейнер №4 (вариант 3) 5.85x2.4 14.04 ЛДСП оцинкованный профлист 235 000 р. 12 500 р.

Административно-бытовые комплексы

Вид Наименование / тип Габаритные размеры (м.) Общая площадь (м²) Схема планировки Внутренняя отделка Наружная отделка Покупка / руб. Аренда (руб. / мес.)
ПРОЕКТ МОДУЛЬНОГО АДМИНИСТРАТИВНО – БЫТОВОГО КОМПЛЕКСА 12.0x12.0 ЛДСП 12.0x12.0 144 ЛДСП Оцинкованный профлист 4 080 000 р. Уточняйте у менеджера
ПРОЕКТ МОДУЛЬНОГО АДМИНИСТРАТИВНО – БЫТОВОГО КОМПЛЕКСА 12.0x14,4 ЛДСП 12.0x14.4 345.6 ЛДСП Оцинкованный профлист 9 075 000 р. Уточняйте у менеджера
ПРОЕКТ МОДУЛЬНОГО АДМИНИСТРАТИВНО – БЫТОВОГО КОМПЛЕКСА 12.0x16,8 ЛДСП 12.0x16.8 403.2 ЛДСП Оцинкованный профлист 10 910 000 р. Уточняйте у менеджера
ПРОЕКТ МОДУЛЬНОГО АДМИНИСТРАТИВНО – БЫТОВОГО КОМПЛЕКСА 12.0x24.0 ЛДСП 12.0x24.0 576 ЛДСП Оцинкованный профлист 15 345 000 р. Уточняйте у менеджера
ПРОЕКТ МОДУЛЬНОГО АДМИНИСТРАТИВНО – БЫТОВОГО КОМПЛЕКСА 13,5х26,4 ЛДСП 13.5x26.4 712.8 ЛДСП Оцинкованный профлист 17 740 000 р. Уточняйте у менеджера
ПРОЕКТ МОДУЛЬНОГО АДМИНИСТРАТИВНО – БЫТОВОГО КОМПЛЕКСА 13,5х28,8 ЛДСП 13.5x28.8 777.6 ЛДСП Оцинкованный профлист 19 240 000 р. Уточняйте у менеджера
ПРОЕКТ МОДУЛЬНОГО АДМИНИСТРАТИВНО – БЫТОВОГО КОМПЛЕКСА 18х40,8 ЛДСП 18x40.8 734.4 ЛДСП Оцинкованный профлист 17 620 000 р. Уточняйте у менеджера
ПРОЕКТ МОДУЛЬНОГО АДМИНИСТРАТИВНО – БЫТОВОГО КОМПЛЕКСА 14х28,8 ЛДСП 14x28.8 806.4 ЛДСП Оцинкованный профлист 20 505 000 р. Уточняйте у менеджера
ПРОЕКТ МОДУЛЬНОГО АДМИНИСТРАТИВНО – БЫТОВОГО КОМПЛЕКСА 12.0x12.0 Плита OSB 12.0x12.0 144 Плита OSB 9 мм. Оцинкованный профлист 3 875 000 р. Уточняйте у менеджера
ПРОЕКТ МОДУЛЬНОГО АДМИНИСТРАТИВНО – БЫТОВОГО КОМПЛЕКСА 12.0x12.0 Панели МДФ 12.0x12.0 144 Панели МДФ Оцинкованный профлист 3 965 000 р. Уточняйте у менеджера
ПРОЕКТ МОДУЛЬНОГО АДМИНИСТРАТИВНО – БЫТОВОГО КОМПЛЕКСА 12.0x14,4 Плита OSB 12.0x14.4 345.6 Плита OSB 9 мм. Оцинкованный профлист 8 680 000 р. Уточняйте у менеджера
ПРОЕКТ МОДУЛЬНОГО АДМИНИСТРАТИВНО – БЫТОВОГО КОМПЛЕКСА 12.0x14,4 Панели МДФ 12.0x14.4 345.6 Панели МДФ Оцинкованный профлист 8 870 000 р. Уточняйте у менеджера
ПРОЕКТ МОДУЛЬНОГО АДМИНИСТРАТИВНО – БЫТОВОГО КОМПЛЕКСА 12.0x16,8 Плита OSB 12.0x16.8 403.2 Плита OSB 9 мм. Оцинкованный профлист 10 335 000 р. Уточняйте у менеджера
ПРОЕКТ МОДУЛЬНОГО АДМИНИСТРАТИВНО – БЫТОВОГО КОМПЛЕКСА 12.0x16,8 Панели МДФ 12.0x16.8 403.2 Панели МДФ Оцинкованный профлист 10 600 000 р. Уточняйте у менеджера
ПРОЕКТ МОДУЛЬНОГО АДМИНИСТРАТИВНО – БЫТОВОГО КОМПЛЕКСА 12.0x24.0 Плита OSB 12.0x24.0 576 Плита OSB 9 мм. Оцинкованный профлист 14 620 000 р. Уточняйте у менеджера
ПРОЕКТ МОДУЛЬНОГО АДМИНИСТРАТИВНО – БЫТОВОГО КОМПЛЕКСА 12.0x24.0 Панели МДФ 12.0x24.0 576 Панели МДФ Оцинкованный профлист 14 940 000 р. Уточняйте у менеджера
ПРОЕКТ МОДУЛЬНОГО АДМИНИСТРАТИВНО – БЫТОВОГО КОМПЛЕКСА 13,5х26,4 Плита OSB 13.5x26.4 712.8 Плита OSB 9 мм. Оцинкованный профлист 16 910 000 р. Уточняйте у менеджера
ПРОЕКТ МОДУЛЬНОГО АДМИНИСТРАТИВНО – БЫТОВОГО КОМПЛЕКСА 13,5х26,4 Панели МДФ 13.5x26.4 712.8 Панели МДФ Оцинкованный профлист 17 265 000 р. Уточняйте у менеджера
ПРОЕКТ МОДУЛЬНОГО АДМИНИСТРАТИВНО – БЫТОВОГО КОМПЛЕКСА 13,5х28,8 Плита OSB 13.5x28.8 777.6 Плита OSB 9 мм. Оцинкованный профлист 18 225 000 р. Уточняйте у менеджера
ПРОЕКТ МОДУЛЬНОГО АДМИНИСТРАТИВНО – БЫТОВОГО КОМПЛЕКСА 13,5х28,8 Панели МДФ 13.5x28.8 777.6 Панели МДФ Оцинкованный профлист 18 675 000 р. Уточняйте у менеджера
ПРОЕКТ МОДУЛЬНОГО АДМИНИСТРАТИВНО – БЫТОВОГО КОМПЛЕКСА 18х40,8 Плита OSB 18x40.8 734.4 Плита OSB 9 мм. Оцинкованный профлист 1 680 000 р. Уточняйте у менеджера
ПРОЕКТ МОДУЛЬНОГО АДМИНИСТРАТИВНО – БЫТОВОГО КОМПЛЕКСА 18х40,8 Панели МДФ 18x40.8 734.4 Панели МДФ Оцинкованный профлист 17 180 000 р. Уточняйте у менеджера
ПРОЕКТ МОДУЛЬНОГО АДМИНИСТРАТИВНО – БЫТОВОГО КОМПЛЕКСА 14х28,8 Плита OSB 14x28.8 806.4 Плита OSB 9 мм. Оцинкованный профлист 19 520 000 р. Уточняйте у менеджера
ПРОЕКТ МОДУЛЬНОГО АДМИНИСТРАТИВНО – БЫТОВОГО КОМПЛЕКСА 14х28,8 Панели МДФ 14x28.8 806.4 Панели МДФ Оцинкованный профлист 19 945 000 р. Уточняйте у менеджера

Блок контейнеры «Север»

Вид Наименование / тип Габаритные размеры (м.) Общая площадь (м²) Схема планировки Внутренняя отделка Наружная отделка Покупка / руб. Аренда (руб. / мес.)
Блок контейнер «Север» №1 (вариант 1) 4x2.4 9.6 Вагонка деревянная профлист с полимерным покрытием 356 000 р. Уточняйте у менеджера
Блок контейнер «Север» №1 (вариант 2) 4x2.4 9.6 Панели МДФ профлист с полимерным покрытием 360 000 р. Уточняйте у менеджера
Блок контейнер «Север» №1 (вариант 3) 4x2.4 9.6 ЛДСП профлист с полимерным покрытием 362 500 р. Уточняйте у менеджера
Блок контейнер «Север» №2 (вариант 1) 5.85x2.4 14.04 Вагонка деревянная профлист с полимерным покрытием 499 000 р. Уточняйте у менеджера
Блок контейнер «Север» №2 (вариант 2) 5.85x2.4 14.04 Панели МДФ профлист с полимерным покрытием 501 000 р. Уточняйте у менеджера
Блок контейнер «Север» №2 (вариант 3) 5.85x2.4 14.04 ЛДСП профлист с полимерным покрытием 505 000 р. Уточняйте у менеджера
Блок контейнер «Север» №3 (вариант 1) 5.85x2.4 14.04 Вагонка деревянная профлист с полимерным покрытием 497 500 р. Уточняйте у менеджера
Блок контейнер «Север» №3 (вариант 2) 5.85x2.4 14.04 Панели МДФ профлист с полимерным покрытием 499 500 р. Уточняйте у менеджера
Блок контейнер «Север» №3 (вариант 3) 5.85x2.4 14.04 ЛДСП профлист с полимерным покрытием 502 500 р. Уточняйте у менеджера
Блок контейнер «Север» №4 (вариант 1) 9x2.4 21.6 Вагонка деревянная профлист с полимерным покрытием 737 000 р. Уточняйте у менеджера
Блок контейнер «Север» №4 (вариант 2) 9x2.4 21.6 Панели МДФ профлист с полимерным покрытием 739 000 р. Уточняйте у менеджера
Блок контейнер «Север» №4 (вариант 3) 9x2.4 21.6 ЛДСП профлист с полимерным покрытием 746 500 р. Уточняйте у менеджера

Евробытовки из сэндвич панелей

Вид Наименование / тип Габаритные размеры (м.) Общая площадь (м²) Схема планировки Внутренняя отделка Наружная отделка Покупка / руб. Аренда (руб. / мес.)
Синяя евробытовка с двуми окнами №1 (вариант 1) 2.4x4 9.6 Сэндвич панели сэндвич панели 345 000 р. Уточняйте у менеджера
Синяя евробытовка №1 (вариант 2) 2.4x4 9.6 Сэндвич панели сэндвич панели 353 000 р. Уточняйте у менеджера
Синяя евробытовка №1 (вариант 3) 2.4x4 9.6 Сэндвич панели сэндвич панели 359 000 р. Уточняйте у менеджера
Евробытовка с туалетом №3 (вариант 1) 2.4x6 14.4 Сэндвич панели сэндвич панели 432 000 р. Уточняйте у менеджера
Евробытовка с туалетом №3 (вариант 2) 2.4x6 14.4 Сэндвич панели сэндвич панели 447 000 р. Уточняйте у менеджера
Евробытовка с туалетом №3 (вариант 3) 2.4x6 14.4 Сэндвич панели сэндвич панели 452 000 р. Уточняйте у менеджера
Евробытовка с санузлом №2 (вариант 1) 2.4x6 14.4 Сэндвич панели сэндвич панели 428 000 р. Уточняйте у менеджера
Евробытовка с санузлом №2 (вариант 2) 2.4x6 14.4 Сэндвич панели сэндвич панели 443 000 р. Уточняйте у менеджера
Евробытовка с санузлом №2 (вариант 3) 2.4x6 14.4 Сэндвич панели сэндвич панели 448 000 р. Уточняйте у менеджера
Евробытовка с кухней №4 (вариант 1) 2.4x9 21.6 Сэндвич панели сэндвич панели 564 000 р. Уточняйте у менеджера
Евробытовка с кроватями №4 (вариант 2) 2.4x9 21.6 Сэндвич панели сэндвич панели 581 000 р. Уточняйте у менеджера
Евробытовка с душем и туалетом №4 (вариант 3) 2.4x9 21.6 Сэндвич панели сэндвич панели 591 000 р. Уточняйте у менеджера

Бытовки утепленные зимнего образца

Вид Наименование / тип Габаритные размеры (м.) Общая площадь (м²) Схема планировки Внутренняя отделка Наружная отделка Покупка / руб. Аренда (руб. / мес.)
Деревянная бытовка утепленная №1 (вариант 1) 3x2.2 6.6 Оргалит-ДВП Имитация бруса 93 500 р. Уточняйте у менеджера
Бытовка деревянная утепленная №1 (вариант 2) 3x2.2 6.6 Оргалит-ДВП Профлист 98 500 р. Уточняйте у менеджера
Утепленная деревянная бытовка №1 (вариант 3) 3x2.2 6.6 Вагонка деревянная Имитация бруса 98 000 р. Уточняйте у менеджера
Бытовка зимняя утепленная №2 (вариант 1) 4x2.2 8.8 Оргалит-ДВП Имитация бруса 98 500 р. Уточняйте у менеджера
Зимняя бытовка утепленная №2 (вариант 2) 4x2.2 8.8 Оргалит-ДВП Профлист 103 500 р. Уточняйте у менеджера
Утепленная зимняя бытовка №2 (вариант 3) 4x2.2 8.8 Вагонка деревянная Имитация бруса 103 000 р. Уточняйте у менеджера
Бытовка утепленная зимнего образца №3 (вариант 1) 5.8x2.2 12.76 Оргалит-ДВП Имитация бруса 115 000 р. Уточняйте у менеджера
Бытовка зимнего образца с утеплением №3 (вариант 2) 5.8x2.2 12.76 Оргалит-ДВП Профлист 120 000 р. Уточняйте у менеджера
Бытовка зимнего образца утепленная №3 (вариант 3) 5.8x2.2 12.76 Вагонка деревянная Имитация бруса 122 500 р. Уточняйте у менеджера
Утепленная строительная бытовка №4 (вариант 1) 5.8x2.2 12.76 Оргалит-ДВП Имитация бруса 122 000 р. Уточняйте у менеджера
Строительная утепленная бытовка №4 (вариант 2) 5.8x2.2 12.76 Оргалит-ДВП Профлист 127 000 р. Уточняйте у менеджера
Бытовка строительная утепленная №4 (вариант 3) 5.8x2.2 12.76 Вагонка деревянная Имитация бруса 131 500 р. Уточняйте у менеджера

Бытовки металлические утепленные

Вид Наименование / тип Габаритные размеры (м.) Общая площадь (м²) Схема планировки Внутренняя отделка Наружная отделка Покупка / руб. Аренда (руб. / мес.)
Бытовка металлическая утепленная №1 (вариант 1) 4x2.4 9.6 Оргалит-ДВП оцинкованный профлист 118 500 р. Уточняйте у менеджера
Бытовка металлическая утепленная №1 (вариант 2) 4x2.4 9.6 Вагонка ПВХ оцинкованный профлист 148 000 р. Уточняйте у менеджера
Бытовка металлическая утепленная №1 (вариант 3) 4x2.4 9.6 Плита OSB 9 мм. оцинкованный профлист 164 500 р. Уточняйте у менеджера
Бытовка металлическая утепленная №2 (вариант 1) 5.85x2.4 14.04 Оргалит-ДВП оцинкованный профлист 135 500 р. Уточняйте у менеджера
Бытовка металлическая утепленная №2 (вариант 2) 5.85x2.4 14.04 Вагонка ПВХ оцинкованный профлист 169 500 р. Уточняйте у менеджера
Бытовка металлическая утепленная №2 (вариант 3) 5.85x2.4 14.04 Плита OSB 9 мм. оцинкованный профлист 175 000 р. Уточняйте у менеджера
Бытовка металлическая утепленная №3 (вариант 1) 5.85x2.4 14.04 Оргалит-ДВП оцинкованный профлист 135 500 р. Уточняйте у менеджера
Бытовка металлическая утепленная №3 (вариант 2) 5.85x2.4 14.04 Вагонка ПВХ оцинкованный профлист 169 500 р. Уточняйте у менеджера
Бытовка металлическая утепленная №3 (вариант 3) 5.85x2.4 14.04 Плита OSB 9 мм. оцинкованный профлист 175 000 р. Уточняйте у менеджера
Бытовка металлическая утепленная №4 (вариант 1) 5.85x2.4 14.04 Оргалит-ДВП оцинкованный профлист 150 500 р. Уточняйте у менеджера
Бытовка металлическая утепленная №4 (вариант 2) 5.85x2.4 14.04 Вагонка ПВХ оцинкованный профлист 185 500 р. Уточняйте у менеджера
Бытовка металлическая утепленная №4 (вариант 3) 5.85x2.4 14.04 Плита OSB 9 мм. оцинкованный профлист 191 000 р. Уточняйте у менеджера

Модульные банно-прачечные комплексы

Вид Наименование / тип Габаритные размеры (м.) Общая площадь (м²) Схема планировки Внутренняя отделка Наружная отделка Покупка / руб. Аренда (руб. / мес.)
Проект банно-прачечного комплекса 6.0x7.2 6.0x7.2 43.2 Панели ПВХ Оцинкованный профлист 1 150 000 р. Уточняйте у менеджера
Проект банно-прачечного комплекса 8.0х9.6 8.0x9.6 76.8 Панели ПВХ Оцинкованный профлист 2 310 000 р. Уточняйте у менеджера
Проект банно-прачечного комплекса 8.0х12.0 8.0x12.0 96 Панели ПВХ Оцинкованный профлист 2 550 000 р. Уточняйте у менеджера
Проект банно-прачечного комплекса 9.0х21.6 9.0x21.6 194.4 Панели ПВХ Оцинкованный профлист 5 620 000 р. Уточняйте у менеджера
Проект банно-прачечного комплекса 12.0х21.6 12.0x21.6 259.2 Панели ПВХ Оцинкованный профлист 7 750 000 р. Уточняйте у менеджера
Проект банно-прачечного комплекса 12.0х24.0 12.0x24.0 288 Панели ПВХ Оцинкованный профлист 8 050 000 р. Уточняйте у менеджера

Модульные склады

Вид Наименование / тип Габаритные размеры (м.) Общая площадь (м²) Схема планировки Внутренняя отделка Наружная отделка Покупка / руб. Аренда (руб. / мес.)
Проект модульного склада 6.0x9.6 6.0x9.6 57.6 Плита OSB 9 мм. Оцинкованный профлист 1 205 000 р. Уточняйте у менеджера
Проект модульного склада 8.0х12.0 8.0x12.0 96 Плита OSB 9 мм. Оцинкованный профлист 1 955 000 р. Уточняйте у менеджера
Проект модульного склада 9.0х14,4 9.0x14.4 129.6 Плита OSB 9 мм. Оцинкованный профлист 2 630 000 р. Уточняйте у менеджера
Проект модульного склада 12.0х16,8 12.0x16.8 201.6 Плита OSB 9 мм. Оцинкованный профлист 4 295 000 р. Уточняйте у менеджера
Проект модульного склада 12.0х19,2 12.0x19.2 230.4 Плита OSB 9 мм. Оцинкованный профлист 4 925 000 р. Уточняйте у менеджера
Проект модульного склада 12.0х24.0 12.0x24.0 288 Плита OSB 9 мм. Оцинкованный профлист 6 220 000 р. Уточняйте у менеджера
Проект модульного склада 6.0x9.6 6.0x9.6 57.6 Оцинкованный профлист Оцинкованный профлист 1 245 000 р. Уточняйте у менеджера
Проект модульного склада 6.0x9.6 6.0x9.6 57.6 Вагонка деревянная Оцинкованный профлист 1 250 000 р. Уточняйте у менеджера
Проект модульного склада 8.0х12.0 8.0x12.0 96 Оцинкованный профлист Оцинкованный профлист 2 090 000 р. Уточняйте у менеджера
Проект модульного склада 8.0х12.0 8.0x12.0 96 Вагонка деревянная Оцинкованный профлист 2 110 000 р. Уточняйте у менеджера
Проект модульного склада 9.0х14,4 9.0x14.4 129.6 Оцинкованный профлист Оцинкованный профлист 2 900 000 р. Уточняйте у менеджера
Проект модульного склада 9.0х14,4 9.0x14.4 129.6 Вагонка деревянная Оцинкованный профлист 2 930 000 р. Уточняйте у менеджера
Проект модульного склада 12.0х16,8 12.0x16.8 201.6 Оцинкованный профлист Оцинкованный профлист 4 375 000 р. Уточняйте у менеджера
Проект модульного склада 12.0х16,8 12.0x16.8 201.6 Вагонка деревянная Оцинкованный профлист 4 430 000 р. Уточняйте у менеджера
Проект модульного склада 12.0х19,2 12.0x19.2 230.4 Оцинкованный профлист Оцинкованный профлист 5 015 000 р. Уточняйте у менеджера
Проект модульного склада 12.0х19,2 12.0x19.2 230.4 Вагонка деревянная Оцинкованный профлист 5 070 000 р. Уточняйте у менеджера
Проект модульного склада 12.0х24.0 12.0x24.0 288 Оцинкованный профлист Оцинкованный профлист 6 410 000 р. Уточняйте у менеджера
Проект модульного склада 12.0х24.0 12.0x24.0 288 Вагонка деревянная Оцинкованный профлист 6 470 000 р. Уточняйте у менеджера

Посты охраны на постаменте (подиуме)

Вид Наименование / тип Габаритные размеры (м.) Общая площадь (м²) Схема планировки Внутренняя отделка Наружная отделка Покупка / руб. Аренда (руб. / мес.)
Пост охраны на подиуме №1 (вариант 1) 1.5x1.5 2.25 Оргалит-ДВП оцинкованный профлист 153 000 р. Уточняйте у менеджера
Пост охраны на подиуме №1 (вариант 2) 1.5x1.5 2.25 Вагонка ПВХ оцинкованный профлист 156 500 р. Уточняйте у менеджера
Пост охраны на подиуме №1 (вариант 3) 1.5x1.5 2.25 Вагонка деревянная оцинкованный профлист 160 500 р. Уточняйте у менеджера
Пост охраны на подиуме №2 (вариант 1) 2x2 4 Оргалит-ДВП оцинкованный профлист 167 000 р. Уточняйте у менеджера
Пост охраны на подиуме №2 (вариант 2) 2x2 4 Вагонка ПВХ оцинкованный профлист 170 000 р. Уточняйте у менеджера
Пост охраны на подиуме №2 (вариант 3) 2x2 4 Вагонка деревянная оцинкованный профлист 174 000 р. Уточняйте у менеджера
Пост охраны на подиуме №3 (вариант 1) 2.4x2.5 6 Оргалит-ДВП оцинкованный профлист 175 000 р. Уточняйте у менеджера
Пост охраны на подиуме №3 (вариант 2) 2.4x2.5 6 Вагонка ПВХ оцинкованный профлист 175 000 р. Уточняйте у менеджера
Пост охраны на подиуме №3 (вариант 3) 2.4x2.5 6 Вагонка деревянная оцинкованный профлист 180 500 р. Уточняйте у менеджера
Пост охраны на подиуме №4 (вариант 1) 2.4x3 7.2 Оргалит-ДВП оцинкованный профлист 188 000 р. Уточняйте у менеджера
Пост охраны на подиуме №4 (вариант 2) 2.4x3 7.2 Вагонка ПВХ оцинкованный профлист 196 000 р. Уточняйте у менеджера
Пост охраны на подиуме №4 (вариант 3) 2.4x3 7.2 Вагонка деревянная оцинкованный профлист 194 000 р. Уточняйте у менеджера
Пост охраны на подиуме №5 (вариант 1) 2.4x4 9.6 Оргалит-ДВП оцинкованный профлист 201 000 р. Уточняйте у менеджера
Пост охраны на подиуме №5 (вариант 2) 2.4x4 9.6 Вагонка ПВХ оцинкованный профлист 204 000 р. Уточняйте у менеджера
Пост охраны на подиуме №5 (вариант 3) 2.4x4 9.6 Вагонка деревянная оцинкованный профлист 207 000 р. Уточняйте у менеджера

Вахтовые поселки

Вид Наименование / тип Габаритные размеры (м.) Общая площадь (м²) Схема планировки Внутренняя отделка Наружная отделка Покупка / руб. Аренда (руб. / мес.)
Проект вахтового посёлка 14.0х9.6 14.0x9.6 134.4 ЛДСП Оцинкованный профлист 3 910 000 р. Уточняйте у менеджера
Проект вахтового посёлка 14.0х24.0 14.0x24.0 336 ЛДСП Оцинкованный профлист 8 440 000 р. Уточняйте у менеджера
Проект вахтового посёлка 14.0х24.0 14.0x24.0 672 ЛДСП Оцинкованный профлист 16 100 000 р. Уточняйте у менеджера
Проект вахтового посёлка 14.0х31.2 14.0x31.2 873.6 ЛДСП Оцинкованный профлист 21 780 000 р. Уточняйте у менеджера
Проект вахтового посёлка 14.0х31,2 14.0x31.2 873.6 ЛДСП Оцинкованный профлист 21 910 000 р. Уточняйте у менеджера
Проект вахтового посёлка 14.0х57,6 14x57.6 806.4 ЛДСП Оцинкованный профлист 21 575 000 р. Уточняйте у менеджера
Проект вахтового посёлка 14.0х76,8 14x76.8 2150.4 ЛДСП Оцинкованный профлист 59 890 000 р. Уточняйте у менеджера
Проект вахтового посёлка 14.0х9.6 14.0x9.6 134.4 Панели МДФ Оцинкованный профлист 3 820 000 р. Уточняйте у менеджера
Проект вахтового посёлка 14.0х9.6 14.0x9.6 134.4 OSB 9 мм. Оцинкованный профлист 3 770 000 р. Уточняйте у менеджера
Проект вахтового посёлка 14.0х24.0 14.0x24.0 336 Панели МДФ Оцинкованный профлист 8 150 000 р. Уточняйте у менеджера
Проект вахтового посёлка 14.0х24.0 14.0x24.0 336 OSB 9 мм. Оцинкованный профлист 8 020 000 р. Уточняйте у менеджера
Проект вахтового посёлка 14.0х24.0 14.0x24.0 672 Панели МДФ Оцинкованный профлист 15 550 000 р. Уточняйте у менеджера
Проект вахтового посёлка 14.0х24.0 14.0x24.0 672 OSB 9 мм. Оцинкованный профлист 15 210 000 р. Уточняйте у менеджера
Проект вахтового посёлка 14.0х31.2 14.0x31.2 873.6 Панели МДФ Оцинкованный профлист 21 070 000 р. Уточняйте у менеджера
Проект вахтового посёлка 14.0х31.2 14.0x31.2 873.6 OSB 9 мм. Оцинкованный профлист 20 640 000 р. Уточняйте у менеджера
Проект вахтового посёлка 14.0х31,2 14.0x31.2 873.6 Панели МДФ Оцинкованный профлист 21 230 000 р. Уточняйте у менеджера
Проект вахтового посёлка 14.0х31,2 14.0x31.2 873.6 OSB 9 мм. Оцинкованный профлист 20 810 000 р. Уточняйте у менеджера
Проект вахтового посёлка 14.0х57,6 14x57.6 806.4 Панели МДФ Оцинкованный профлист 21 040 000 р. Уточняйте у менеджера
Проект вахтового посёлка 14.0х57,6 14x57.6 806.4 OSB 9 мм. Оцинкованный профлист 20 700 000 р. Уточняйте у менеджера
Проект вахтового посёлка 14.0х76,8 14x76.8 2150.4 Панели МДФ Оцинкованный профлист 58 250 000 р. Уточняйте у менеджера
Проект вахтового посёлка 14.0х76,8 14x76.8 2150.4 OSB 9 мм. Оцинкованный профлист 56 400 000 р. Уточняйте у менеджера

Бытовки под склад

Вид Наименование / тип Габаритные размеры (м.) Общая площадь (м²) Схема планировки Внутренняя отделка Наружная отделка Покупка / руб. Аренда (руб. / мес.)
Бытовка под склад № 1 (Вариант 1) 3x2.4 7.2 Оцинкованный профлист оцинкованный профлист 242 000 р. Уточняйте у менеджера
Бытовка под склад № 1 (Вариант 2) 3x2.4 7.2 Плита OSB 9 мм. оцинкованный профлист 247 500 р. Уточняйте у менеджера
Бытовка под склад № 1 (Вариант 3) 3x2.4 7.2 Вагонка деревянная оцинкованный профлист 249 500 р. Уточняйте у менеджера
Бытовка под склад № 3 (Вариант 1) 5.85x2.4 14.04 Оцинкованный профлист оцинкованный профлист 295 500 р. Уточняйте у менеджера
Бытовка под склад № 3 (Вариант 2) 5.85x2.4 14.04 Плита OSB 9 мм. оцинкованный профлист 301 000 р. Уточняйте у менеджера
Бытовка под склад № 3 (Вариант 3) 5.85x2.4 14.04 Вагонка деревянная оцинкованный профлист 303 000 р. Уточняйте у менеджера
Бытовка под склад № 2 (Вариант 1) 4x2.4 9.6 Оцинкованный профлист оцинкованный профлист 256 000 р. Уточняйте у менеджера
Бытовка под склад № 2 (Вариант 2) 4x2.4 9.6 Плита OSB 9 мм. оцинкованный профлист 261 500 р. Уточняйте у менеджера
Бытовка под склад № 2 (Вариант 3) 4x2.4 9.6 Вагонка деревянная оцинкованный профлист 263 500 р. Уточняйте у менеджера
Бытовка под склад № 4 (Вариант 1) 8x2.4 19.2 Оцинкованный профлист оцинкованный профлист 385 000 р. Уточняйте у менеджера
Бытовка под склад № 4 (Вариант 2) 8x2.4 19.2 Плита OSB 9 мм. оцинкованный профлист 390 500 р. Уточняйте у менеджера
Бытовка под склад № 4 (Вариант 3) 8x2.4 19.2 Вагонка деревянная оцинкованный профлист 392 500 р. Уточняйте у менеджера

Бытовки распашонки

Вид Наименование / тип Габаритные размеры (м.) Общая площадь (м²) Схема планировки Внутренняя отделка Наружная отделка Покупка / руб. Аренда (руб. / мес.)
Бытовка металлическая двухкомнатная 6х2,45 5.85x2.4 14.04 Оргалит-ДВП Уточняйте у менеджера 110 000 р. Уточняйте у менеджера
Бытовка металлическая двухкомнатная 6х2,45 5.85x2.4 14.04 Вагонка ПВХ Уточняйте у менеджера 114 000 р. Уточняйте у менеджера
Бытовка металлическая двухкомнатная 6х2,45 5.85x2.4 14.04 Вагонка деревянная Уточняйте у менеджера 118 000 р. Уточняйте у менеджера
Бытовка металлическая распашонка 6х2,45 5.85x2.4 14.04 Оргалит-ДВП Уточняйте у менеджера 110 500 р. Уточняйте у менеджера
Бытовка металлическая распашонка 6х2,45 5.85x2.4 14.04 Вагонка ПВХ Уточняйте у менеджера 114 500 р. Уточняйте у менеджера
Бытовка металлическая распашонка 6х2,45 5.85x2.4 14.04 Вагонка деревянная Уточняйте у менеджера 118 500 р. Уточняйте у менеджера
Строительная бытовка со сборкой на месте №4 (вариант 1) 5.8x2.2 12.76 Оргалит-ДВП Имитация бруса 131 000 р. Уточняйте у менеджера
Строительная бытовка со сборкой на месте №4 (вариант 2) 5.8x2.2 12.76 Оргалит-ДВП Профлист 136 000 р. Уточняйте у менеджера
Строительная бытовка со сборкой на месте №4 (вариант 3) 5.8x2.2 12.76 Вагонка деревянная Имитация бруса 140 500 р. Уточняйте у менеджера
Строительная бытовка без внутренней отделки №4 (вариант 1) 5.8x2.2 12.76 Без отделки Имитация бруса 113 000 р. Уточняйте у менеджера
Строительная бытовка без внутренней отделки №4 (вариант 2) 5.8x2.2 12.76 Без отделки Профлист 118 000 р. Уточняйте у менеджера
Строительная бытовка без внутренней отделки №4 (вариант 3) 5.8x2.2 12.76 Без отделки Плита OSB 9 мм. 116 000 р. Уточняйте у менеджера
Бытовка металлическая двухкомнатная 6х2,45 5.85x2.4 14.04 Оргалит-ДВП Уточняйте у менеджера 110 000 р. Уточняйте у менеджера
Бытовка металлическая двухкомнатная 6х2,45 5.85x2.4 14.04 Вагонка ПВХ Уточняйте у менеджера 114 000 р. Уточняйте у менеджера
Бытовка металлическая двухкомнатная 6х2,45 5.85x2.4 14.04 Вагонка деревянная Уточняйте у менеджера 118 000 р. Уточняйте у менеджера
Бытовка металлическая распашонка 6х2,45 5.85x2.4 14.04 Оргалит-ДВП Уточняйте у менеджера 110 500 р. Уточняйте у менеджера
Бытовка металлическая распашонка 6х2,45 5.85x2.4 14.04 Вагонка ПВХ Уточняйте у менеджера 114 500 р. Уточняйте у менеджера
Бытовка металлическая распашонка 6х2,45 5.85x2.4 14.04 Вагонка деревянная Уточняйте у менеджера 118 500 р. Уточняйте у менеджера
Строительная бытовка со сборкой на месте №4 (вариант 1) 5.8x2.2 12.76 Оргалит-ДВП Имитация бруса 131 000 р. Уточняйте у менеджера
Строительная бытовка со сборкой на месте №4 (вариант 2) 5.8x2.2 12.76 Оргалит-ДВП Профлист 136 000 р. Уточняйте у менеджера
Строительная бытовка со сборкой на месте №4 (вариант 3) 5.8x2.2 12.76 Вагонка деревянная Имитация бруса 140 500 р. Уточняйте у менеджера
Строительная бытовка без внутренней отделки №4 (вариант 1) 5.8x2.2 12.76 Без отделки Имитация бруса 113 000 р. Уточняйте у менеджера
Строительная бытовка без внутренней отделки №4 (вариант 2) 5.8x2.2 12.76 Без отделки Профлист 118 000 р. Уточняйте у менеджера
Строительная бытовка без внутренней отделки №4 (вариант 3) 5.8x2.2 12.76 Без отделки Плита OSB 9 мм. 116 000 р. Уточняйте у менеджера

Металлические бытовки

Вид Наименование / тип Габаритные размеры (м.) Общая площадь (м²) Схема планировки Внутренняя отделка Наружная отделка Покупка / руб. Аренда (руб. / мес.)
Металлическая бытовка 3,0 x 2,4 - Оргалит ДВП 3x2.4 7.2 Оргалит-ДВП оцинкованный профлист 103 000 р. Уточняйте у менеджера
Металлическая бытовка 3,0 x 2,4 - Вагонка ПВХ 3x2.4 7.2 Вагонка ПВХ оцинкованный профлист 135 500 р. Уточняйте у менеджера
Металлическая бытовка 3,0 x 2,4 - Вагонка деревянная 3x2.4 7.2 Вагонка деревянная оцинкованный профлист 140 500 р. Уточняйте у менеджера
Металлическая бытовка 4,0 x 2,4 - Оргалит ДВП 4x2.4 9.6 Оргалит-ДВП оцинкованный профлист 109 000 р. Уточняйте у менеджера
Металлическая бытовка 4,0 x 2,4 - Вагонка ПВХ 4x2.4 9.6 Вагонка ПВХ оцинкованный профлист 138 000 р. Уточняйте у менеджера
Металлическая бытовка 4,0 x 2,4 - Вагонка деревянная 4x2.4 9.6 Вагонка деревянная оцинкованный профлист 153 500 р. Уточняйте у менеджера
Металлическая бытовка без тамбура 5,85 x 2,4 - Оргалит ДВП 5.85x2.4 14.04 Оргалит-ДВП оцинкованный профлист 128 500 р. 6 500 р.
Металлическая бытовка без тамбура 5,85 x 2,4 - Вагонка ПВХ 5.85x2.4 14.04 Вагонка ПВХ оцинкованный профлист 163 000 р. Уточняйте у менеджера
Металлическая бытовка без тамбура 5,85 x 2,4 - Вагонка деревянная 5.85x2.4 14.04 Вагонка деревянная оцинкованный профлист 168 000 р. 7 500 р.
Металлическая бытовка с тамбуром 5,85 x 2,4 - Оргалит ДВП 5.85x2.4 14.04 Оргалит-ДВП оцинкованный профлист 130 500 р. 7 500 р.
Металлическая бытовка с тамбуром 5,85 x 2,4 - Вагонка ПВХ 5.85x2.4 14.04 Вагонка ПВХ оцинкованный профлист 164 500 р. Уточняйте у менеджера
Металлическая бытовка с тамбуром 5,85 x 2,4 - Вагонка деревянная 5.85x2.4 14.04 Вагонка деревянная оцинкованный профлист 170 000 р. 7 500 р.
Металлическая бытовка распашонка 5,85 x 2,4 - Оргалит ДВП 5.85x2.4 14.04 Оргалит-ДВП оцинкованный профлист 145 500 р. 8 500 р.
Металлическая бытовка распашонка 5,85 x 2,4 - Вагонка ПВХ 5.85x2.4 14.04 Вагонка ПВХ оцинкованный профлист 180 500 р. Уточняйте у менеджера
Металлическая бытовка распашонка 5,85 x 2,4 - Вагонка деревянная 5.85x2.4 14.04 Вагонка деревянная оцинкованный профлист 186 000 р. 9 500 р.
Металлическая бытовка с кухней в тамбуре 5,85 x 2,4 - Оргалит ДВП 5.85x2.4 14.04 Оргалит-ДВП оцинкованный профлист 133 500 р. Уточняйте у менеджера
Металлическая бытовка с кухней в тамбуре 5,85 x 2,4 - Вагонка ПВХ 5.85x2.4 14.04 Вагонка ПВХ оцинкованный профлист 168 000 р. Уточняйте у менеджера
Металлическая бытовка с кухней в тамбуре 5,85 x 2,4 - Вагонка деревянная 5.85x2.4 14.04 Вагонка деревянная оцинкованный профлист 174 000 р. Уточняйте у менеджера
Металлическая бытовка с тамбуром 7,0 x 2,4 - Оргалит ДВП 7x2.4 16.8 Оргалит-ДВП оцинкованный профлист 180 500 р. Уточняйте у менеджера
Металлическая бытовка с тамбуром 7,0 x 2,4 - Вагонка ПВХ 7x2.4 16 Вагонка ПВХ оцинкованный профлист 216 000 р. Уточняйте у менеджера
Металлическая бытовка с тамбуром 7,0 x 2,4 - Вагонка деревянная 7x2.4 16.8 Вагонка деревянная оцинкованный профлист 225 000 р. Уточняйте у менеджера
Металлическая бытовка с тамбуром 8,0 x 2,4 - Оргалит ДВП 8x2.4 19.2 Оргалит-ДВП оцинкованный профлист 209 500 р. Уточняйте у менеджера
Металлическая бытовка с тамбуром 8,0 x 2,4 - Вагонка ПВХ 8x2.4 19.2 Вагонка ПВХ оцинкованный профлист 250 000 р. Уточняйте у менеджера
Металлическая бытовка с тамбуром 8,0 x 2,4 - Вагонка деревянная 8x2.4 19.2 Вагонка деревянная оцинкованный профлист 260 000 р. Уточняйте у менеджера
Металлическая бытовка 9,0 x 2,4 - Оргалит ДВП 9x2.4 21.6 Оргалит-ДВП оцинкованный профлист 235 500 р. Уточняйте у менеджера
Металлическая бытовка 9,0 x 2,4 - Вагонка ПВХ 9x2.4 21.6 Вагонка ПВХ оцинкованный профлист 282 500 р. Уточняйте у менеджера
Металлическая бытовка 9,0 x 2,4 - Вагонка деревянная 9x2.4 21.6 Вагонка деревянная оцинкованный профлист 296 000 р. Уточняйте у менеджера
Металлическая бытовка 12,0 x 2,4 - Оргалит ДВП 12x2.4 28.8 Оргалит-ДВП оцинкованный профлист 322 500 р. Уточняйте у менеджера
Металлическая бытовка 12,0 x 2,4 - Вагонка ПВХ 12x2.4 28.8 Вагонка ПВХ оцинкованный профлист 365 000 р. Уточняйте у менеджера
Металлическая бытовка 12,0 x 2,4 - Вагонка деревянная 12x2.4 28.8 Вагонка деревянная оцинкованный профлист 388 000 р. Уточняйте у менеджера

Блок контейнер сушилка

Вид Наименование / тип Габаритные размеры (м.) Общая площадь (м²) Схема планировки Внутренняя отделка Наружная отделка Покупка / руб. Аренда (руб. / мес.)
Блок контейнер сушилка 4,0х2,4 4x2.4 9.6 Оцинкованный профлист оцинкованный профлист 260 000 р. Уточняйте у менеджера
Блок контейнер сушилка 5,85х2,4 5.85x2.4 14.04 Оцинкованный профлист оцинкованный профлист 360 000 р. Уточняйте у менеджера
Блок контейнер сушилка 8х2,4 8x2.4 19.2 Оцинкованный профлист оцинкованный профлист 482 000 р. Уточняйте у менеджера

Модульные бытовки эконом

Вид Наименование / тип Габаритные размеры (м.) Общая площадь (м²) Схема планировки Внутренняя отделка Наружная отделка Покупка / руб. Аренда (руб. / мес.)
Модульная бытовка с плоской крышей 4.8х6.0 4.8х6.0 28.8 ДВП-Оргалит Оцинкованный профлист 355 000 р. Уточняйте у менеджера
Модульная бытовка с плоской крышей 4.8х6.0 4.8х6.0 28.8 OSB 9 мм. Оцинкованный профлист 375 000 р. Уточняйте у менеджера
Модульная бытовка с плоской крышей 4.8х6.0 4.8х6.0 28.8 Панели ПВХ Оцинкованный профлист 390 000 р. Уточняйте у менеджера
Модульная бытовка с плоской крышей 4.8х6.0 4.8х6.0 28.8 ДВП-Оргалит Оцинкованный профлист 420 000 р. Уточняйте у менеджера
Модульная бытовка с плоской крышей 4.8х6.0 4.8х6.0 28.8 OSB 9 мм. Оцинкованный профлист 445 000 р. Уточняйте у менеджера
Модульная бытовка с плоской крышей 4.8х6.0 4.8х6.0 28.8 Панели ПВХ Оцинкованный профлист 460 000 р. Уточняйте у менеджера
Модульная бытовка с плоской крышей 4.8х6.0 4.8х6.0 28.8 ДВП-Оргалит Оцинкованный профлист 480 000 р. Уточняйте у менеджера
Модульная бытовка с плоской крышей 4.8х6.0 4.8х6.0 28.8 OSB 9 мм. Оцинкованный профлист 500 000 р. Уточняйте у менеджера
Модульная бытовка с плоской крышей 4.8х6.0 4.8х6.0 28.8 Панели ПВХ Оцинкованный профлист 530 000 р. Уточняйте у менеджера
Модульная бытовка с плоской крышей 7.2x6.0 7.2x6.0 43.2 ДВП-Оргалит Оцинкованный профлист 640 000 р. Уточняйте у менеджера
Модульная бытовка с плоской крышей 7.2x6.0 7.2x6.0 43.2 OSB 9 мм. Оцинкованный профлист 675 000 р. Уточняйте у менеджера
Модульная бытовка с плоской крышей 7.2x6.0 7.2x6.0 43.2 Панели ПВХ Оцинкованный профлист 700 000 р. Уточняйте у менеджера
Модульная бытовка с плоской крышей 7.2x6.0 7.2x6.0 43.2 OSB 9 мм. Оцинкованный профлист 650 000 р. Уточняйте у менеджера
Модульная бытовка с плоской крышей 7.2x6.0 7.2x6.0 43.2 Панели ПВХ Оцинкованный профлист 670 000 р. Уточняйте у менеджера
Модульная бытовка с плоской крышей 7.2x6.0 7.2x6.0 43.2 ДВП-Оргалит Оцинкованный профлист 600 000 р. Уточняйте у менеджера
Модульная бытовка с плоской крышей 7.2x6.0 7.2x6.0 43.2 ДВП-Оргалит Оцинкованный профлист 595 000 р. Уточняйте у менеджера
Модульная бытовка с плоской крышей 7.2x6.0 7.2x6.0 43.2 OSB 9 мм. Оцинкованный профлист 645 000 р. Уточняйте у менеджера
Модульная бытовка с плоской крышей 7.2x6.0 7.2x6.0 43.2 Панели ПВХ Оцинкованный профлист 665 000 р. Уточняйте у менеджера
Модульная бытовка с двухскатной крышей 4.8х6.0 4.8х6.0 28.8 ДВП-Оргалит Оцинкованный профлист 495 000 р. Уточняйте у менеджера
Модульная бытовка с двухскатной крышей 4.8х6.0 4.8х6.0 28.8 OSB 9 мм. Оцинкованный профлист 515 000 р. Уточняйте у менеджера
Модульная бытовка с двухскатной крышей 4.8х6.0 4.8х6.0 28.8 Панели ПВХ Оцинкованный профлист 530 000 р. Уточняйте у менеджера
Модульная бытовка с двухскатной крышей 4.8х6.0 4.8х6.0 28.8 ДВП-Оргалит Оцинкованный профлист 560 000 р. Уточняйте у менеджера
Модульная бытовка с двухскатной крышей 4.8х6.0 4.8х6.0 28.8 OSB 9 мм. Оцинкованный профлист 580 000 р. Уточняйте у менеджера
Модульная бытовка с двухскатной крышей 4.8х6.0 4.8х6.0 28.8 Панели ПВХ Оцинкованный профлист 595 000 р. Уточняйте у менеджера
Модульная бытовка с двухскатной крышей 4.8х6.0 4.8х6.0 28.8 ДВП-Оргалит Оцинкованный профлист 610 000 р. Уточняйте у менеджера
Модульная бытовка с двухскатной крышей 4.8х6.0 4.8х6.0 28.8 OSB 9 мм. Оцинкованный профлист 630 000 р. Уточняйте у менеджера
Модульная бытовка с двухскатной крышей 4.8х6.0 4.8х6.0 28.8 Панели ПВХ Оцинкованный профлист 660 000 р. Уточняйте у менеджера
Модульная бытовка с двухскатной крышей 7.2x6.0 7.2x6.0 43.2 ДВП-Оргалит Оцинкованный профлист 815 000 р. Уточняйте у менеджера
Модульная бытовка с двухскатной крышей 7.2x6.0 7.2x6.0 43.2 OSB 9 мм. Оцинкованный профлист 855 000 р. Уточняйте у менеджера
Модульная бытовка с двухскатной крышей 7.2x6.0 7.2x6.0 43.2 Панели ПВХ Оцинкованный профлист 875 000 р. Уточняйте у менеджера
Модульная бытовка с двухскатной крышей 7.2x6.0 7.2x6.0 43.2 ДВП-Оргалит Оцинкованный профлист 775 000 р. Уточняйте у менеджера
Модульная бытовка с двухскатной крышей 7.2x6.0 7.2x6.0 43.2 OSB 9 мм. Оцинкованный профлист 825 000 р. Уточняйте у менеджера
Модульная бытовка с двухскатной крышей 7.2x6.0 7.2x6.0 43.2 Панели ПВХ Оцинкованный профлист 845 000 р. Уточняйте у менеджера
Модульная бытовка с двухскатной крышей 7.2x6.0 7.2x6.0 43.2 ДВП-Оргалит Оцинкованный профлист 770 000 р. Уточняйте у менеджера
Модульная бытовка с двухскатной крышей 7.2x6.0 7.2x6.0 43.2 OSB 9 мм. Оцинкованный профлист 820 000 р. Уточняйте у менеджера
Модульная бытовка с двухскатной крышей 7.2x6.0 7.2x6.0 43.2 Панели ПВХ Оцинкованный профлист 835 000 р. Уточняйте у менеджера